Skanska HQ – Budapest
Helyszín: 1133 Budapest, Váci út 96-98.
Építtető: Skanska Magyarország Ingatlan Kft.
Tervezés: 2016-2017
Megvalósulás: 2017
Lépték: 480 m2
Vezető tervezők: LAB5 architects | Erdélyi Linda, Dobos András, Korényi Balázs, Gáspár Virág Anna
Tervezők: Nyerges Judit, Sipos Rebeka, Szegedi Zoltán
Kiviteli terv: Value4Real Kft.
Fotók: Batár Zsolt
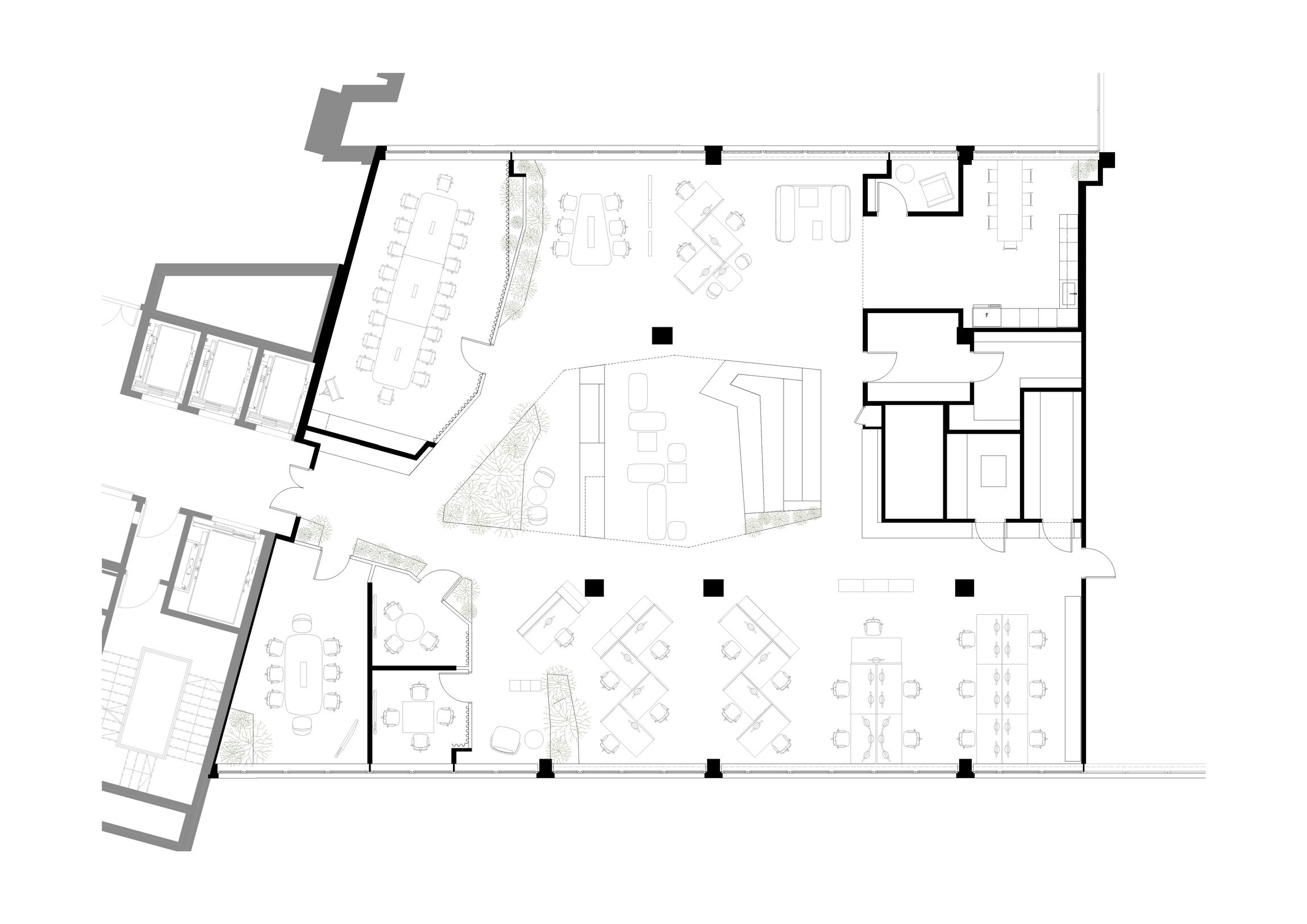
Skanska egy svéd ingatlanberuházó, aki több mint 25 éve jelen van a magyar piacon. A cég kiemelt figyelmet fordít minden egyes csapattagjára. A vállalati filozófiából következően minden kolléga szabad hozzáféréssel rendelkezik a munkafelülethez, mely szó szerint azzal jár, hogy a beérkező munkatárs a szabadon lévő munkaállomások közül bármelyiket kiválaszthatja, aszerint, hogy számára éppen melyik lenne a legalkalmasabb, a munka neme, vagy akár a saját hangulata alapján. A tér kialakítása ösztönzi a kreativitást, az együttdolgozást, a kommunikációt.
...több mutatása
A csapatmunka megsegítéséhez a layout úgy lett kialakítva, hogy mindenki fizikailag egy térben ülhessen, de ne alakuljanak ki zavaró áthallások és átlátások.
Amikor vendég érkezik az irodába, nem szembesítjük céges logókkal és üzenetekkel. Azt szeretnénk, hogy amint belép a térbe, az iroda belső hangulata és kialakítása nyomán alakuljon ki benne a kép. Az első lépésekkel egy szabad pulthoz vezetjük, ahol leülhet vagy készíthet magának egy kávét, így téve otthonossá számára a teret.
Mivel az iroda egy Skanska által fejlesztett irodaépületben található, megragadtuk az alkalmat, hogy magát az épületet, vagyis a Skanska munkájának gyümölcsét is elegánsan bemutathassuk, így nem került takarásra a mennyezet vasbeton felülete, az elektromos installációk kábelezése, és a gépészet sem.
A tér tagolásához nem használtunk falakat, vagy nagyméretű paravánokat, hanem a land art eszközéhez nyúltunk. Skanska elkötelezett a fenntartható fejlődés mellett, ezt, itt a belsőbe telepített növényzet is alátámasztja.
Az iroda szíve a tér közepén található nagyméretű, amfiteátrum jellegű tárgyaló tér. Itt kerül heti rendszerességgel megrendezésre a majdnem minden kollégát érintő nagy összejövetel. Az élénk munkaóránkon túl a hely alkalmas kreatív megbeszélésekre, kisebb összeülésekre, prezentációkra is, de akár további, flexibilisen használható munkafelületként is értelmezhető.
A tér hátsó felében egy zárt dobozba lettek elhelyezve a kiszolgáló funkciók, az amfiteátrum hátuljában pedig a fénymásoló lett elrejtve.
