Mobilházak
Építtető: Modular
Tervezés: 2012-2013
Megvalósulás: 2012-2013
Lépték: ~40 m2
Vezető tervezők: LAB5 architects | Erdélyi Linda, Dobos András, Korényi Balázs, Gáspár Virág Anna
Fotók és látvány: LAB5
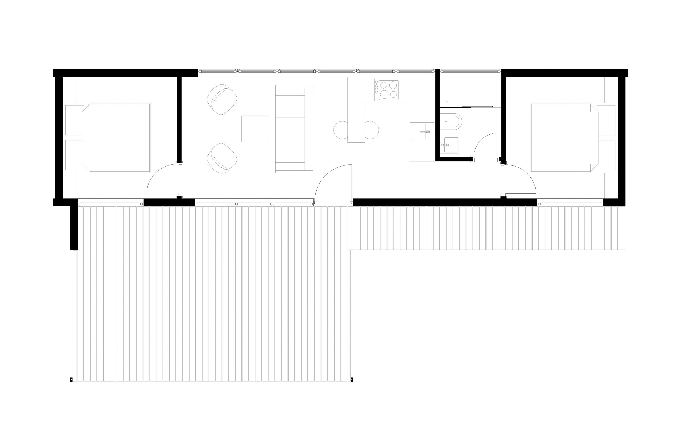
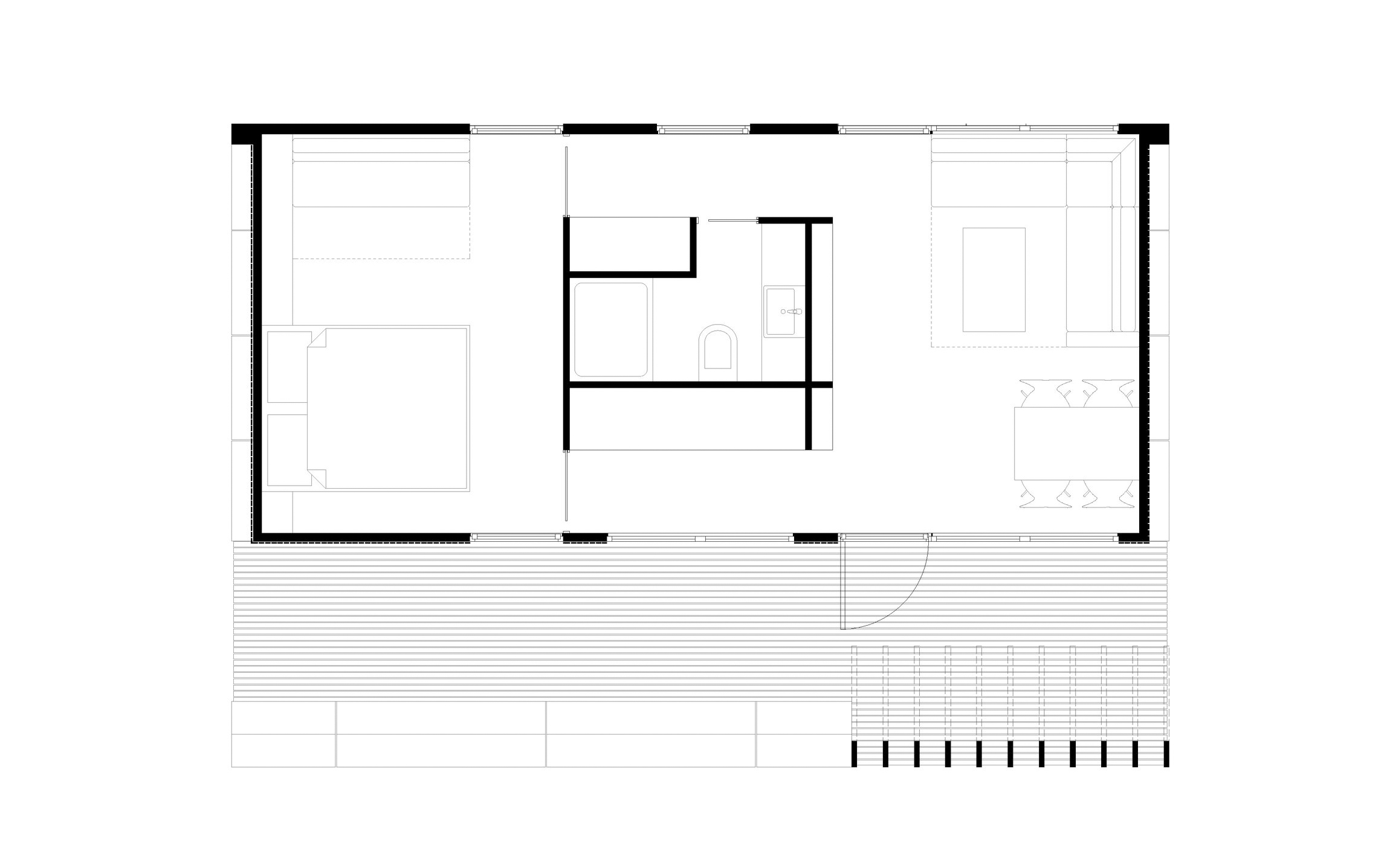
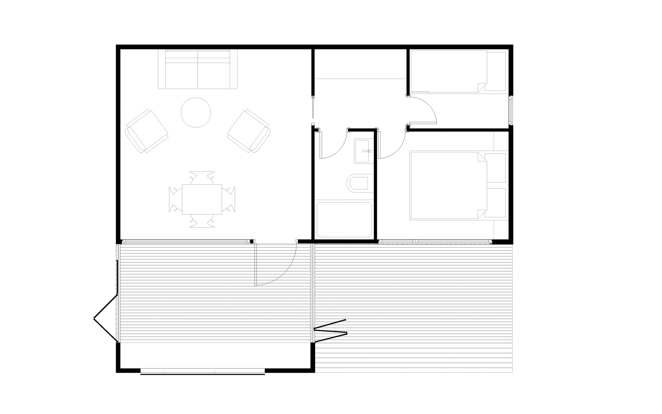
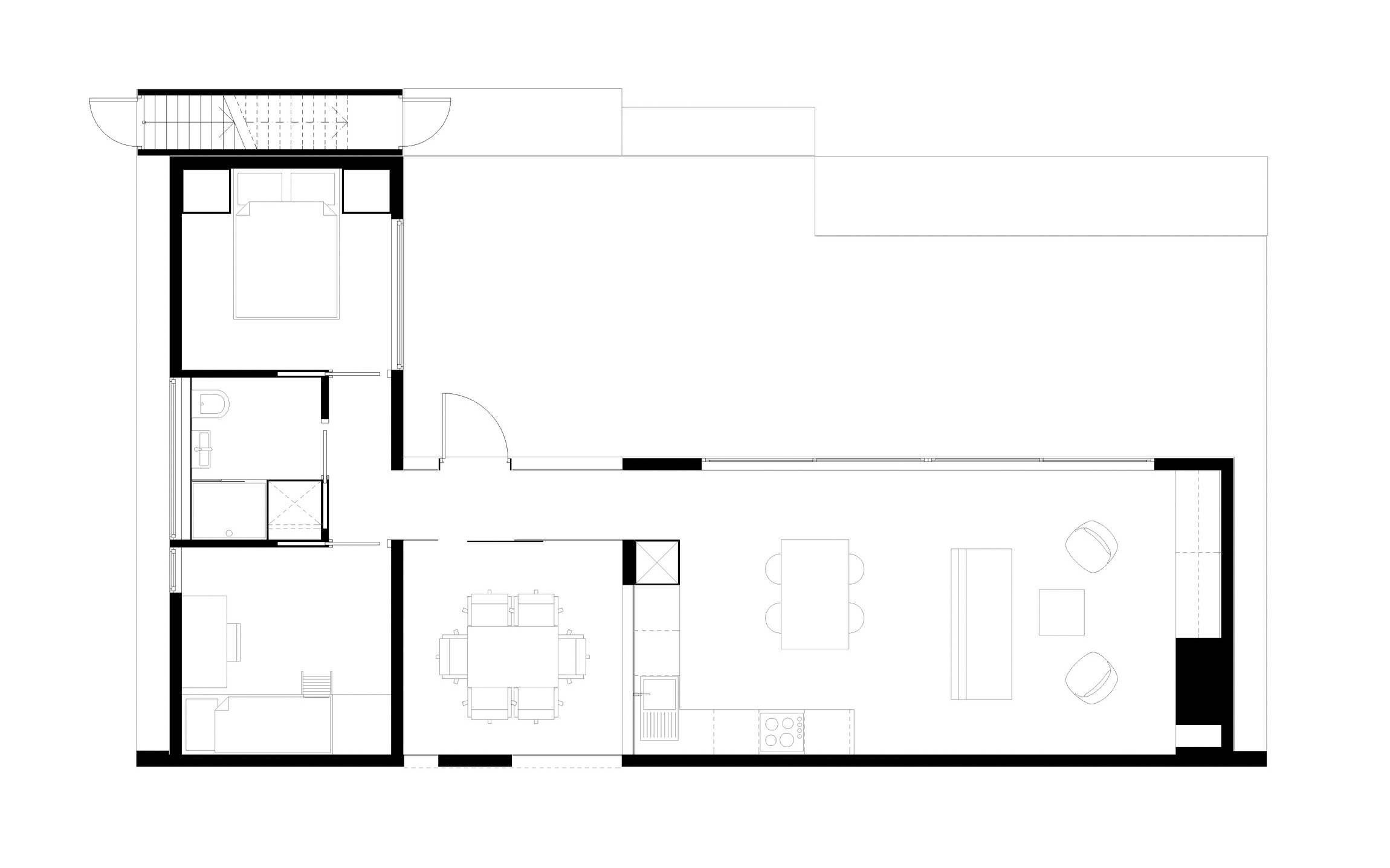
A “Modular” nevű, mobilházak építésével foglalkozó cég számára készítettük ezeket a típusházakat.
A ~40 nm-es alapterületű, 1 db mobil egységből álló épület trélerrel és daruval bárhova lehelyezhető, és az egységek külön-külön is működőképesek, a ház átalakítása (bővítése, csökkentése) így csak szándék kérdése. Hőszigetelt, moduláris elrendezés, akár lakóház is építhető belőle, egyedi igényekre szabható.
Az Istria ECO változat teljesen ökologikus szemléletű, szinte csak újrahasznosítható anyagokból.
