Gundel Étterem mosdóblokkok felújítása
Helyszín: 1146 Budapest, Gundel Károly út 4.
Építtető: Gundel Kft.
Tervezés: 2017
Megvalósulás: 2017
Lépték: ~50 m2
Vezető tervezők: LAB5 architects | Erdélyi Linda, Dobos András, Korényi Balázs, Gáspár Virág Anna
Tervezők: Fehér Gabriella, Sipos Rebeka
Társtervezők: Re-Energy Kft., GSTR IntElekt Mérnökiroda Kft.
Fotók: Batár Zsolt
A Gundel Magyarország egyik leghíresebb étterme, ahol 1910 óta a tradicionális magyar konyhát szolgálják fel kiemelkedő színvonalon. Az eredeti épület 1894-ben épült, s napjainkban nagyobb átalakításokon és bővítéseken megy át, a LAB5 a mosdóblokkok felújítását tervezhette meg.
...több mutatása
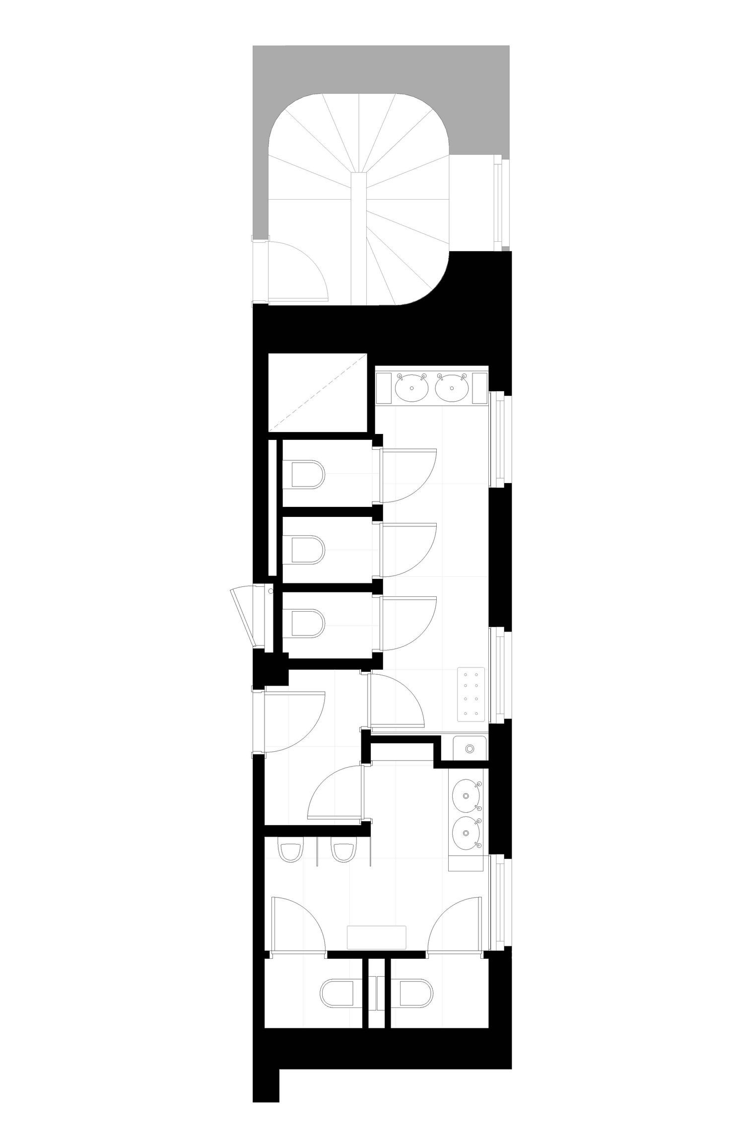
Tér
Mivel a rendelkezésre álló terület nagyon kicsi, s a meglévő mosdóblokkoknál még több szerepelt a tervezési programban, a zsúfolt hatás elkerüléséhez világos felületeket és sok tükröt használtunk. Minden új elemet finomhangoltunk a régi étterem belső világához, színben és anyagban követtük a domináns atmoszférát, de teljesen kortárs módon terveztük meg őket.
Ablakok
Ahhoz, hogy a kívánt nagyobb térhatást elérhessük, s természetességet is kölcsönözni tudjunk, megtartottuk a nagy ablakokat, és az alaprajzot úgy alakítottuk ki, hogy jól érvényesüljenek. Az intimitás eléréséhez újabb, belső opál üveges ablakszárnnyal láttuk el. A két üveg réteg között pedig növényeket helyeztünk el.
Tükrök
A mosdótál feletti tükrök megformálásához egy metaforát használtunk fel. A feltörő friss forrás buborékos vizének hatása cseng vissza a változatás méretű és véletlenszerűen elhelyezett, kör alakú tükrök elrendezésében. A két mosdóblokk közös előtere a legkisebb tér, itt egy virtuális végtelen folyosót alakítottunk ki a két végfal teljes tükörrel való beborítása során.
