Diageo Sky Bar
Helyszín: 1132 Budapest, Váci út 22-24. WEBC Irodaház
Építtető: WEBC Kft.
Tervezés: 2013 december
Megvalósulás: 2014 január-február
Lépték: 120 m2
Vezető tervezők: LAB5 architects | Erdélyi Linda, Dobos András, Korényi Balázs, Gáspár Virág Anna
Tervezők: Szegedi Zoltán, Tótszabó Tamás
Fotók: Batár Zsolt
Az atmoszférát egyrészt a kettős funkcióra szabtuk, másrészt a bérlő arculatához igazítottuk, mivel elsősorban italok kereskedelmével foglalkozik. A belső több eleme is a termékeire hivatkozik. A termet végigkísérő hosszú pad a tér végén visszakanyarodik, a geometriája a pohárba öntött ital ívét adja. Egyes felületek és bútorok a jégkockákat idézik. A bár feletti barna felhő egy üdítő felszínét mutatja – alulról. A barnás és csokoládés szín konkrétan a bérlő fő termékének színe. A kollégákat le lehet ültetni egy céges találkozóra, vagy a székek eltávolításával, a terem bulira alkalmas. A kettős cél miatt a tér hangulatának a nappali munkaidőt is az esti clubbingot is szolgálnia kell. Az esti kényelmes, sötét atmoszférát nappal az egyszerű, napfényes munkahely váltja fel. A megvilágítás színe változtatható, akár konkrét promócióhoz is igazítható. A fehér ülőbútorok, és szintén fehér, fényes dekorbeton felületek a barnás teret fellazítják és játékossá teszik.
...több mutatásaHelyszín és program
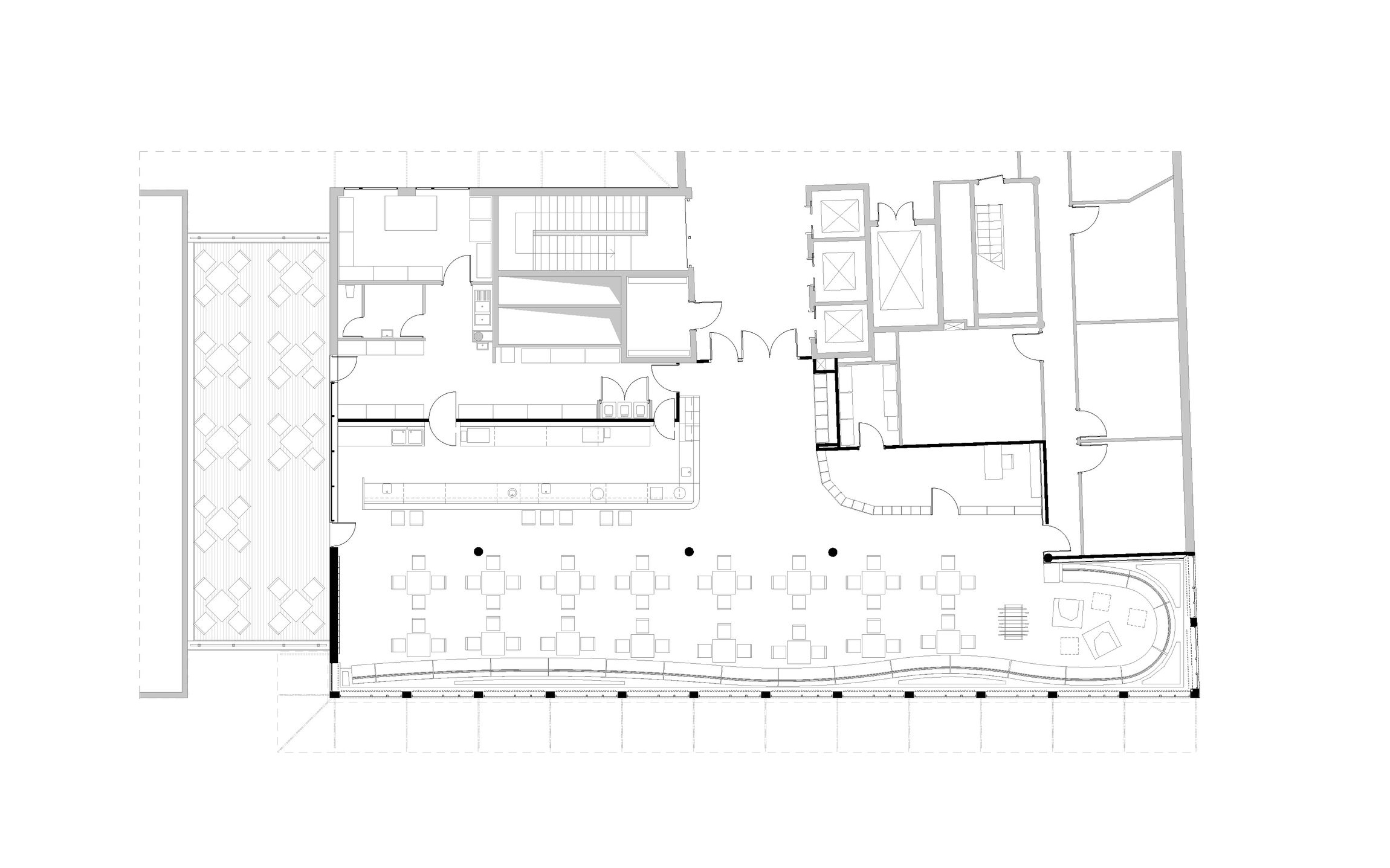
A tervezési terület a belvárosban található, 90-es évek végén épült WEBC Irodaház legfelső szintje. Mivel a tulajdonos és a bérlő régóta kiváló kapcsolatban vannak egymással, így a programot együtt dolgozták ki. Olyan teret szerettek volna, mely két funkciónak is megfelel. Nappal egy olyan bár, ami teret adhat kevésbé formális meetingeknek, előadásoknak, kreatív vitáknak, vagy csak egy kávé-szünetnek. Éjjel viszont inkább clubként működik, ahol céges bulikat, vagy promóciós kampányokat is rendezhetnek.
Belsőépítészet
Az atmoszférát egyrészt a kettős funkcióra szabtuk, másrészt a bérlő arculatához igazítottuk, mivel elsősorban italok kereskedelmével foglalkozik. A belső több eleme is a termékeire hivatkozik. A termet végigkísérő hosszú pad a tér végén visszakanyarodik, a geometriája a pohárba öntött ital ívét adja. Egyes felületek és bútorok a jégkockákat idézik. A bár feletti barna felhő egy üdítő felszínét mutatja – alulról. A barnás és csokoládés szín konkrétan a bérlő fő termékének színe.
A kollégákat le lehet ültetni egy céges találkozóra, vagy a székek eltávolításával, a terem bulira alkalmas. A kettős cél miatt a tér hangulatának a nappali munkaidőt is az esti clubbingot is szolgálnia kell. Az esti kényelmes, sötét atmoszférát nappal az egyszerű, napfényes munkahely váltja fel. A megvilágítás színe változtatható, akár konkrét promócióhoz is igazítható. A fehér ülőbútorok, és szintén fehér, fényes dekorbeton felületek a barnás teret fellazítják és játékossá teszik.
