Vision Towers Irodaház „B” és C” szárnyak belsőépítészete
Helyszín: 1134 Budapest, Angyalföldi út 6-8., Vision Tower (3h építész iroda Kft.)
Építtető: TEVA Magyarország Zrt. | Futureal Group | K4 Észak Ingatlanfejlesztő Kft.
Tervezés: 2014
Megvalósulás: 2015
Lépték: 2200 m2
Vezető tervezők: LAB5 architects | Erdélyi Linda, Dobos András, Korényi Balázs, Gáspár Virág Anna
Tervezők: Szegedi Zoltán, Tótszabó Tamás, Vámos Zoltán
Fotók: Bujnovszky Tamás
Az új irodaházba költöző TEVA részére terveztük meg a 2 szintet magában foglaló iroda belsőépítészetét. A cég arculati kézikönyvének felhasználásával a két szintet összekötő szoborszerű belső lépcsővel kiegészítve készítettük el a 60%-ban egyterű teret tartalmazó irodateret. A szigorú rendet sok-sok növénnyel ellenpontozva és barátságos munkakörnyezetet sikerült megteremtenünk.
...több mutatásaHelyszín és tervezési program
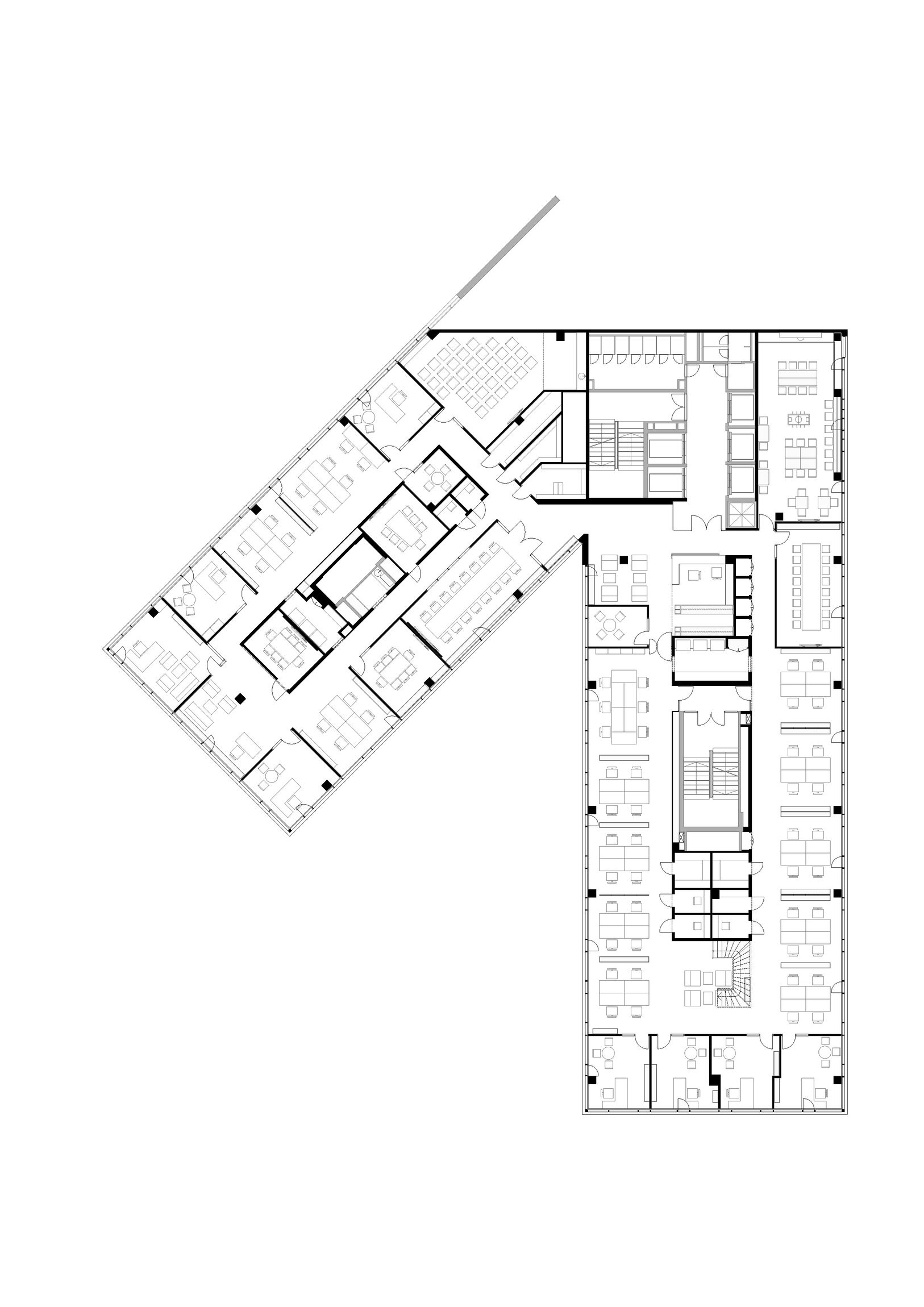
A Vision Towers „B” és „C” szárnyának két szintjét (6-7. emelet) 2200 m2-en foglalja el az iroda, amelyet egy gyógyszeripari cég bérel.
Az épület adottsága, hogy minden irányban rendkívüli panorámával rendelkezik, nagy összefüggő ablaksávval, így ideális az egyterű és cellás egységek elhelyezésére is. A kétféle tértípus arányainak meghatározása a bérlő igényeihez igazodhatott, 60% open space, és 40% cellás irodaterület (tárgyalókkal) lett megépítve.
Az építtető szigorú nemzetközi kézikönyvvel rendelkezett mind az elrendezést, mind a belső megjelenést illetően. Azonban már a tervezési fázis elején szorgalmaztuk egyes pontok esetében az egyedi design megoldásokat, melyeket részint a helyi adottságok miatt is szükségesnek tartottunk – javaslataink támogatásra találtak, sőt egyes elemeit később a kézikönyvbe is beépítenek.
Az alapvetően szigorú tereket és letisztult világot mutató arculatot helyenként egyedi színes elemek, érdekes formák ellenpontozzák, melyeket az alábbiakban részletesen taglalunk is.
Belső mag
Az épületszárnyak közepén - az épület karakteréből adódóan - kézenfekvő volt egy zárt, belső mag kialakítása, amely a természetes világítást nem igénylő, kiszolgáló funkciókat foglalja magában: tárolás, video-konferencia, telefonbox, fénymásolók.
Adottság, hogy az épület fő aknái, közlekedői, menekülő lépcsőháza is ebben a „sötét” középső részben találhatóak.
Ez a mag, amely oly sok különböző, apró, eltérő funkciót tartalmaz, az egységesség kedvéért egy kompakt, szigorú téglalap formában jelenik meg az alaprajzon. Héjként egy körben futó falburkolatot kapott, melyen a nyílászárók is síkban helyezkednek el.
Ahol közös használatú funkció található ebben a kompakt tömegben (telefonboxok, fénymásolók) ott azt élénk színekkel jelöltük.
A belső mag egységes megjelenését tovább erősíti a felső élnél körbefuttatott rejtett LED világítás.
Új belső lépcső
Mivel az irodaterület két szinten található, és a különböző egységek szorosan együtt dolgoznak, menet közben szükségessé vált egy belső lépcső kialakítása is. Így az egymáshoz gyakran átjáró dolgozóknak nem kell kimenniük a közös irodaházi lépcsőházba, ha munkatársaikkal szeretnének személyesen beszélni.
Ezt a belső lépcsőt teljesen egyedi megformálás jellemzi. Önállóan térbeállított, szoborszerű megjelenésű, vonalvezetése az épület külső, földszinti előtetője által inspirált forma. Lendülete a két szint összekötésének metaforája: mintha a felső szint az álmennyezet lefordulásával törne lefelé.
A járófelület maga a teherhordást is biztosító látszó vasbeton szerkezet. A lépcsőt csak kívülről takartuk el fehér burkolattal, mely egyben a mellvédet és fogódzót is alkotja.
Feature wall
A két épületszárny 45 fokos szögben csatlakozik egymáshoz. A csuklópontot mindkét közlekedőről nézve kijelölő, karakteres elem a fal játékos faburkolata.
Ennek megformálásához az arculatban is megjelenő arányrendet és az irodában már máshol is megjelenő faanyagot használtuk fel: „fadobozok” jelennek meg, véletlenszerűen ismételve és forgatva, egyedi rejtett LED világítással kiemelve a falsíkból.
Zöldfelületek
Az egymástól üvegfalakkal tagolt egyterű és cellás irodák esetében is igyekeztünk a lehetőségekhez mérten a természetes megjelenésre, így egyes bútorelemek, a középső zárt magon használt fa mintázatú burkolatot öltötték fel. Tovább humanizáltuk a teret azzal, hogy a munkacsoportok elválasztásánál, és egyes további pontokon élő növényeket telepítettünk. Az irodatérben megjelenő egységes növénybeültetést a tárgyalókban vegyes beültetésre cseréltük. A keretekbe foglalt növényzet a rendezettség érzetét hivatott meghozni a természet becsalogatásával.
