Irodaház Szegeden
Helyszín: Szeged
Építtető: (magán)
Tervezés: 2016-2017
Megvalósulás: 2017
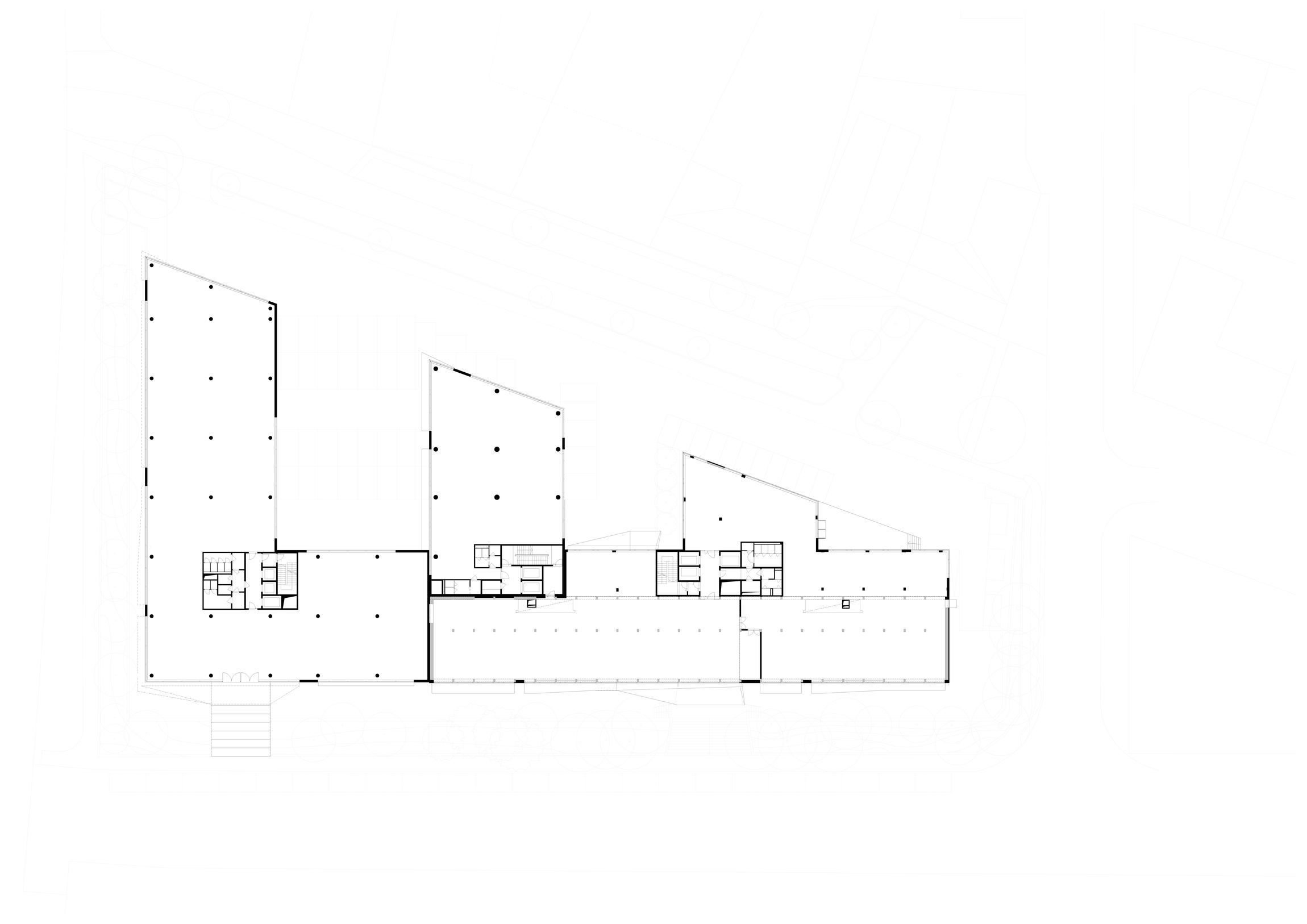
Lépték: 22.000 m2 (első ütem: 7500 m2)
Vezető tervezők: LAB5 architects | Erdélyi Linda, Dobos András, Korényi Balázs, Gáspár Virág Anna
Tervezők: Nyerges Judit, Szegedi Zoltán, Tótszabó Tamás
Társtervezők: Temesvári, Kelevill, Terraplan, 4D
Belsőépítészet: Pivot270 Belsőépítész Stúdió
Fotók: Szentirmai Tamás, építés közben: LAB5
A Tisza partján, Szeged északi hídfőjénél áll a környezet által inspirált épülettömeg. Az egyes épületrészek, nyílászárók, és kiegészítők, mind dél felé, a belvárosra nézve növekednek, dinamikusan követve a folyásirányt.
