Spar szupermarket felújítása
Helyszín: 8300 Tapolca, Juhász Gyula utca
Építtető: Spar Magyarország Kereskedelmi Kft.
Tervezés: 2014 augusztus
Megvalósulás: 2014 december
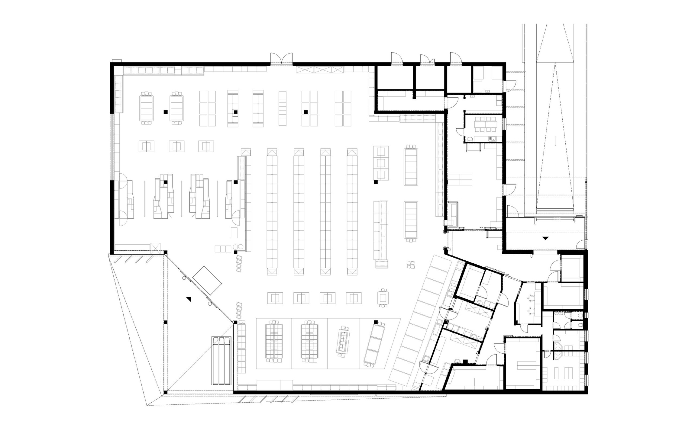
Lépték: 1400 m2
Vezető tervezők: LAB5 architects | Erdélyi Linda, Dobos András, Korényi Balázs, Gáspár Virág Anna
Tervezők: Szegedi Zoltán, Tótszabó Tamás
Fotók: Batár Zsolt
Tapolca a Balaton északi kapuja, ahol a SPAR az üzlete teljes körű felújításába vágott bele az izgalmas, modernista Y házak tőszomszédságában. Az átalakítás a külsőt is érintette, így született meg egy a tanúhegyek felé nyújtózkodó, lamellás előtető-rendszer, ami a főbejárat előtt hoz létre egy átmeneti külső teret. A belsőben energiatudatos műszaki megoldások, és az országosan egységesedő design szerint jártunk el a tervezéssel.
