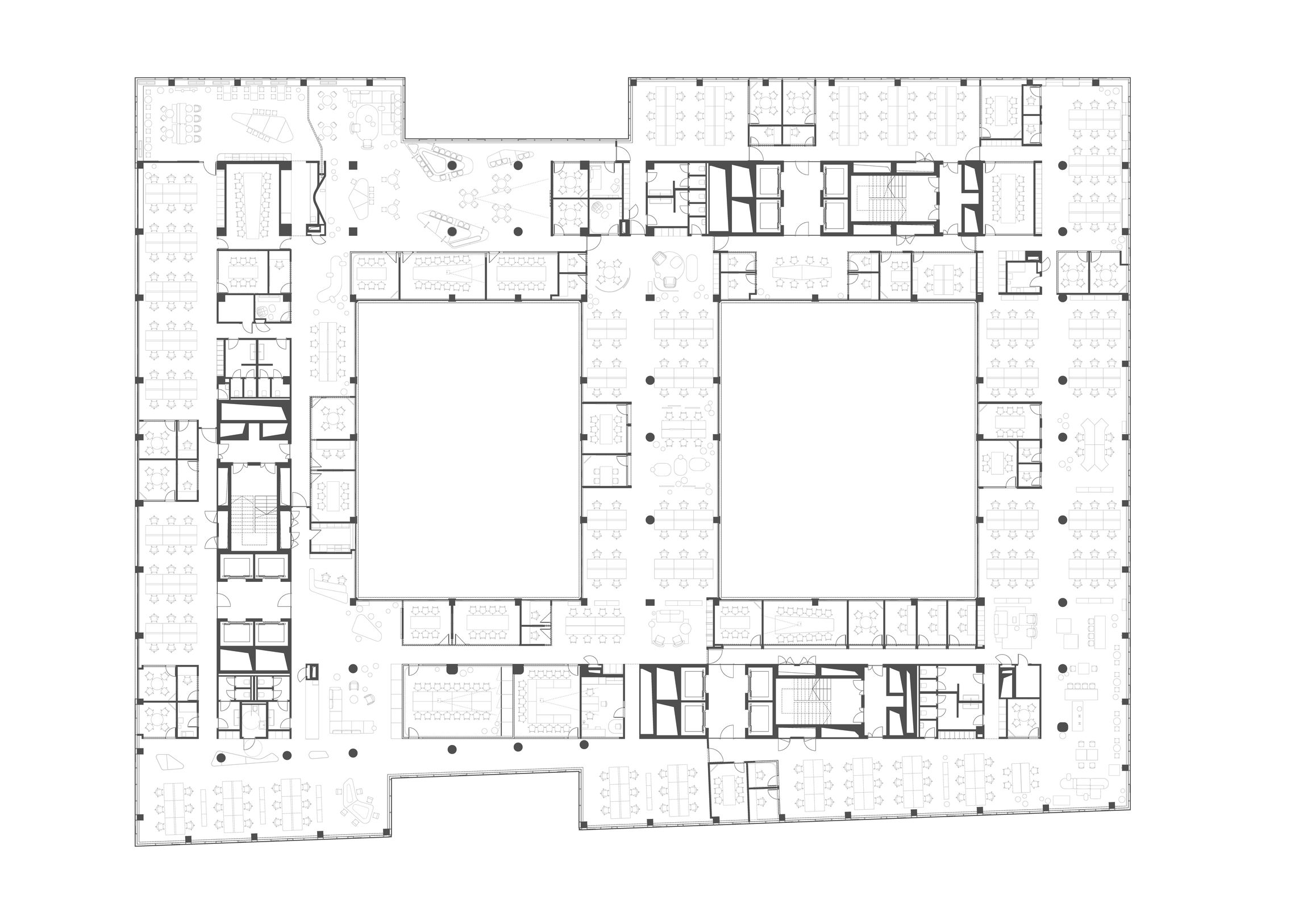
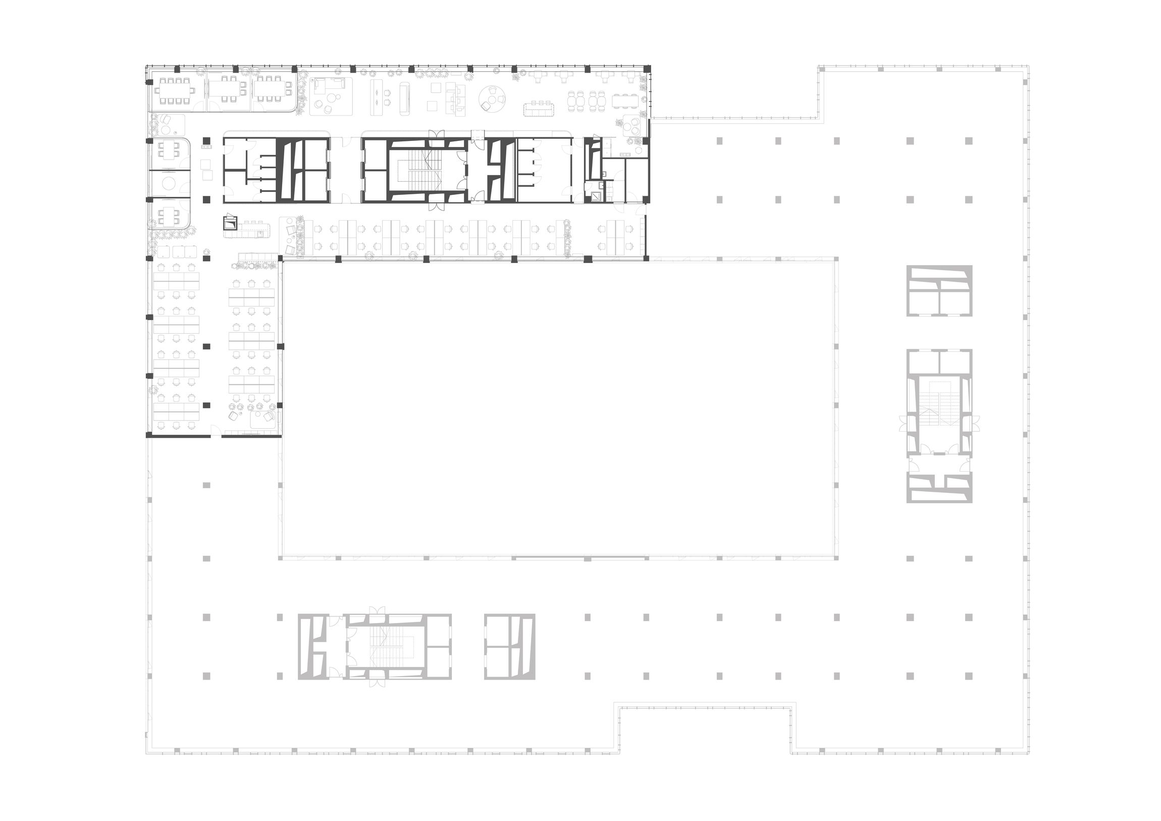
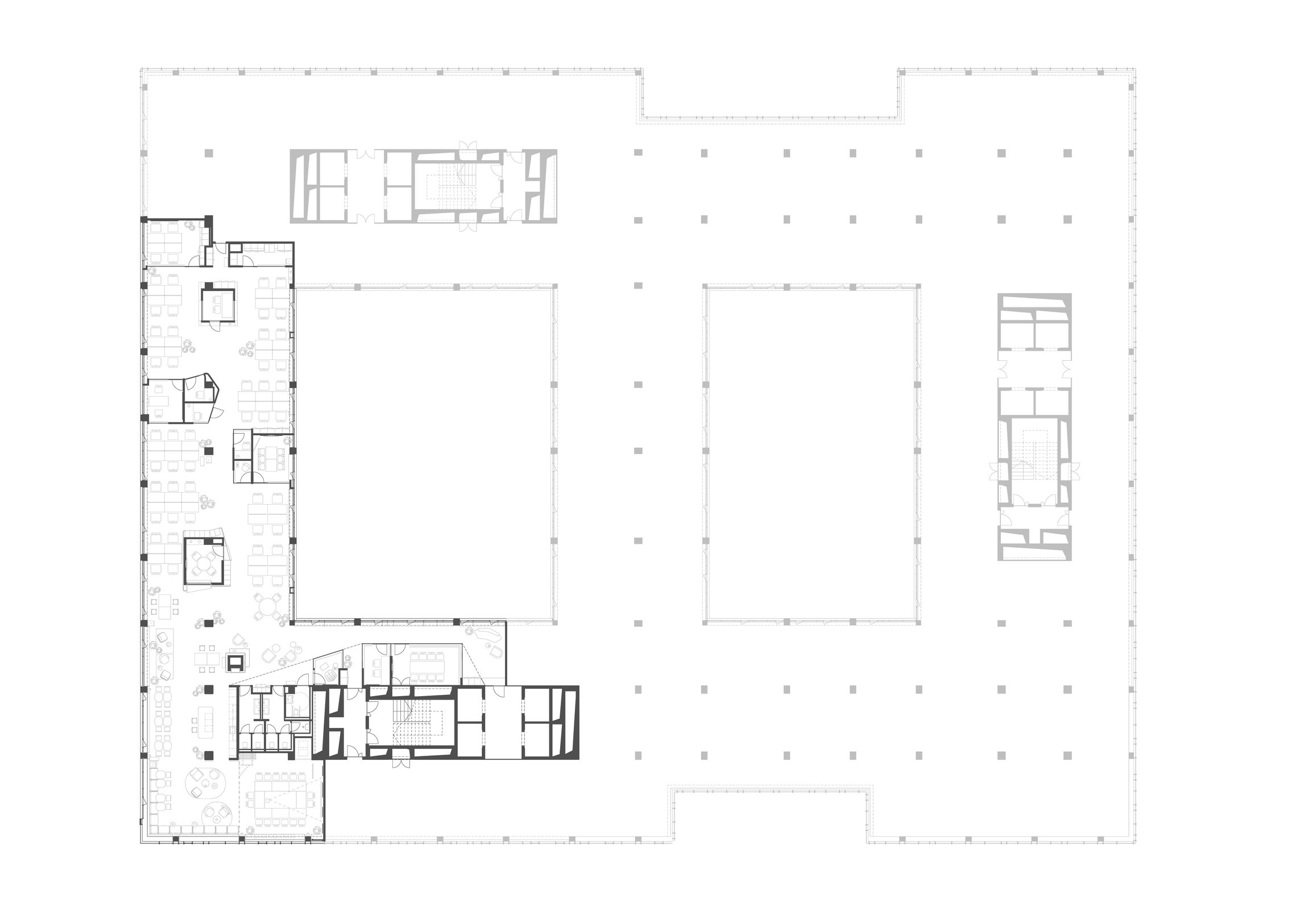
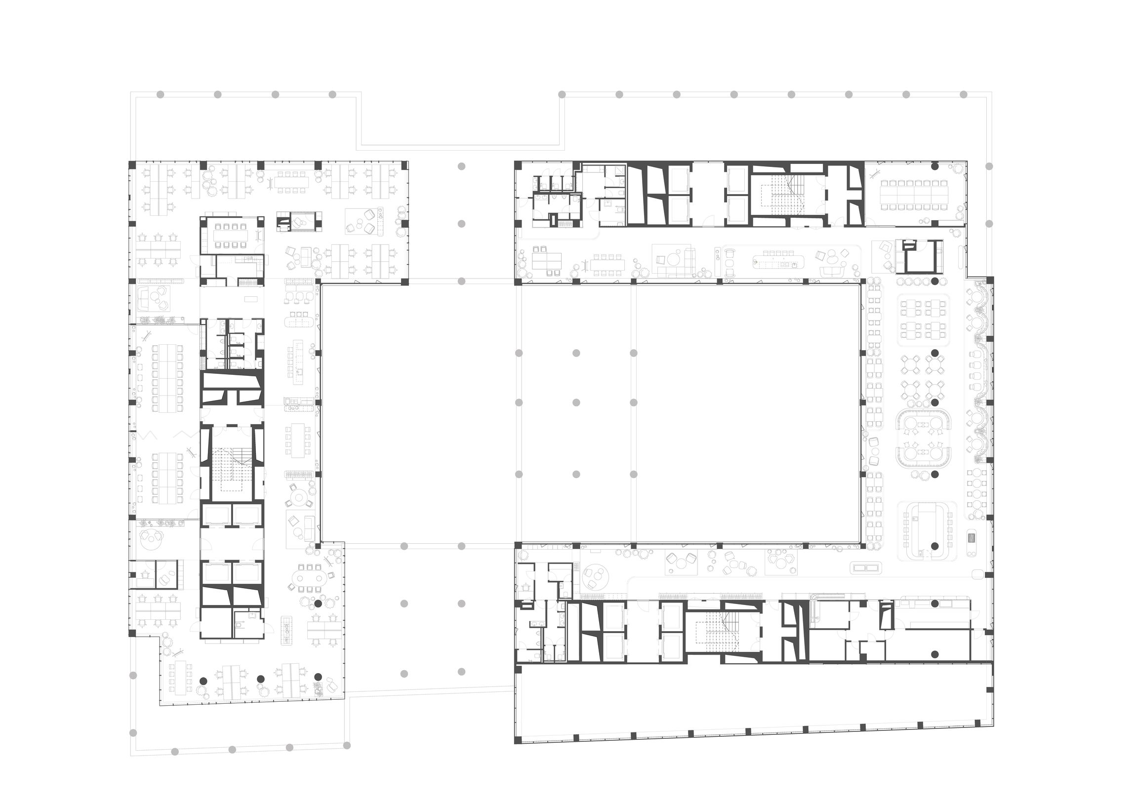
Sanofi 4-5
Helyszín: Váci Greens A, Váci Greens E, Váci Greens F
Építtető: Sanofi
Lépték: különböző léptékek
Belsőépítészet: LAB5 architects | Erdélyi Linda, Dobos András, Gáspár Virág Anna, Korényi Balázs
Projekt belsőépítész: Bató Blanka
Munkatársak: Macsuga Eszter, Rácz-Szabó Barnabás, Wang Guangrui
Épületfotós: Sanofi
A három korábbi megvalósult belsőépítészet után újra együtt dolgozhattunk Sanofival. Számos új funkció és atmoszféra épülhetett meg régi és új helyszíneken. Étteremtől tárgyalókon és nyitott irodai tereken át, egészen speciális minőségű lounge és tárgyaló megoldásokig. A művészeti koncepció még költőibbé, a terek még felszabadultabbakká válhattak.
Több infóért látogasson vissza később.
