„P” Villa a János-hegyen
Helyszín: Budapest, XXII. kerület, János-hegy
Megrendelő: magán
Tervezés: 2016
Megvalósulás: kivitelezés alatt
Lépték: 295 m2
Vezető tervezők: LAB5 architects | Erdélyi Linda, Dobos András, Korényi Balázs, Gáspár Virág Anna
Tervezők: Ferenczi Zsófia, Németh Diána, Monori László, Sipos Rebeka, Szegedi Zoltán, Tóth Dávid
Látványtervek és fotók: LAB5
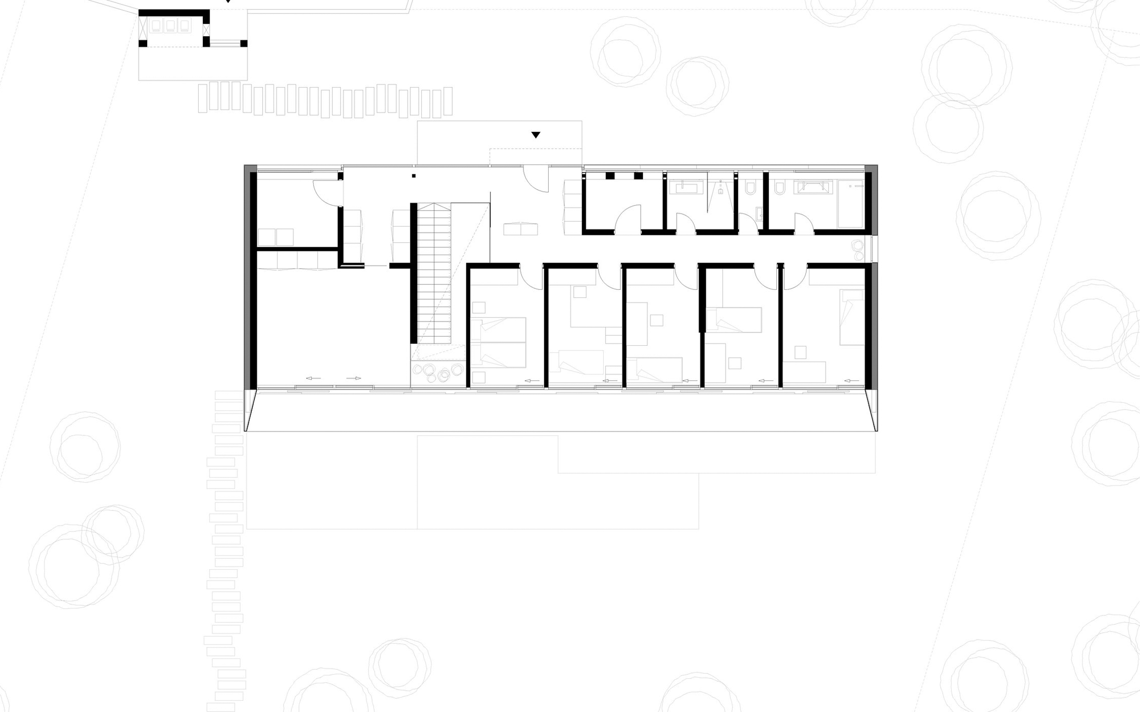
A tervezett villaépület gyönyörű természeti környezetben helyezkedik el, kitűnő kilátással. Ennek megfelelően, olyan épület alkotása volt a cél, amely minél egyszerűbb, és minél inkább a környezet atmoszférájának, és a panorámának van minden porcikájában alárendelve. A földszinti helyiségek a kilátás irányába nyílnak meg nagy üvegfelületekkel, melyhez egy vizuálisan szinte a domboldalon lebegő beton teraszlemez és elegáns bukóéles úszómedence csatlakozik.
...több mutatása
A tervezett villa épület gyönyörű természeti környezetben helyezkedik el, kitűnő kilátással. Minél egyszerűbb, és minél inkább a környezet atmoszférájának, és a panorámának alárendelt házat terveztünk. Az épület alaprajzi elrendezése a terepadottságokra és a használati igényekre reagálva alakult ki. Az épület földszintje részben a terepbe süllyesztett. A helyiségek a kilátás irányába nyílnak meg nagy üvegfelületekkel, melyhez egy vizuálisan szinte a domboldalon lebegő beton teraszlemez és elegáns bukóéles úszómedence csatlakozik. A telekadottságokra reagálva az épület fő megközelítése az emeleti szinten található, itt helyeztük el az épület fő bejáratát, fogadó előterét. Megérkezésnél az előtérből egy a szinteket összekötő egyenes karú lebegő lépcső tárul fel, mely egyenesen a völgy felé, a kilátás felé nyit. Az emeleti szint a család gyermekeinek igényeit szolgálja ki, míg a földszint a szülői zóna a közös használatú terekkel. Fontos szempont volt a földszinti terek szabad, áramló kialakítása, melybe szigorú rendben úsznak be a szükséges kiszolgáló funkciók. Az épület egyszerű tömegének karakterét formálja az elvékonyodó keresztmetszetű előtető, mely természetes árnyékolást illetve a földszinthez kapcsolódó terasznak részbeni fedettséget biztosít. Az épület lapostetős, melyet részben intenzív zöldtető, részben burkolt felület alakít. Mivel a földszinten hatalmas fesztávokat és konzolokat oldottunk meg alátámasztás nélkül, így a tetőn lévő vaskos zöldtetőbe rejtettük el a magas gerendákat, amire az emeleti szintet felkötöttük.
