Nagy Diófa utca Grand’Or Társasház
Helyszín: 1072 Budapest, Nagy Diófa utca 14.
Építtető: Cordia Ingatlanbefektetési Alap
Tervezés: 2016 - 2017
Lépték: 8.300 m2
Vezető tervezők: LAB5 architects | Erdélyi Linda, Dobos András, Korényi Balázs, Gáspár Virág Anna
Projekt építész: Németh Diána
Tervezők: Egyed János, Kendi Bogáta, Páncsics Dávid, Szelezsán Bálint
Belsőépítészet: LAB5 architects
Statika: Puskás Balázs
Épületgépészet: Temesvári László
Részlettervek: Dudinszky Tervezőiroda
Épületgrafika: Gróf Liza
Elektromos tervező: Kelemen Ferenc
Tűzvédelem: Decsi György
Tájépítészet: Karádi Gábor
Felvonók: Gróf Ferenc
Út és közlekedés: Rhorer Ádám
Épületfotók: Batár Zsolt, Gulyás Attila
A 14-es házszám hírnevét egykoron onnan szerezte, hogy Zellerin Mátyás iparmágnás a XIX. század derekán ide telepítette innovatív vasüzemét. Mivel elsőként fogott légszeszlámpák gyártásába, a kezdeti alapítói sikerek után, kitörő dinamikával bővült tovább a cég. Nem kedvelte a sablonos megoldásokat, fürdőszoba berendezései, lámpái, nem csak funkcionálisak és tartósak voltak, hanem egyedi esztétikával is bírtak. Tragikus öngyilkossága után a területen nyomda működött annak lebontásáig. A foghíjtelek így a 90-es évek óta üresen állt parkolóként.
...több mutatása
A pesti zsidónegyed egyik utolsó foghíjának beépítése a környék színes múltjából gyökerezik. A kerület története bővelkedik fordulatokban, tragédiákban és napfényes időszakokban, s valószínű fényes jövő előtt áll. Az építtető Cordia azzal az ambícióval fordult a tervezőkhöz, hogy ez a beruházás évtizedekre nézzen előre, emelje a környék színvonalát.
A város használatának és az utazási szokások megváltozásával, mint más nagyvárosok estében is, úgy Budapest belvárosában is megjelent az igény a szállás jellegű lakásokra. Programjában erre az igényre keresi a választ a Grand’Or is, olyan lakásokat és kiegészítő funkciókat tartalmaz, amik erre a belvárosi helyzetre és igényre reagálnak, akár kiadási célú lakásvásárlóknak, akár a belvárosba vágyó budapestieknek vagy környékbelieknek.
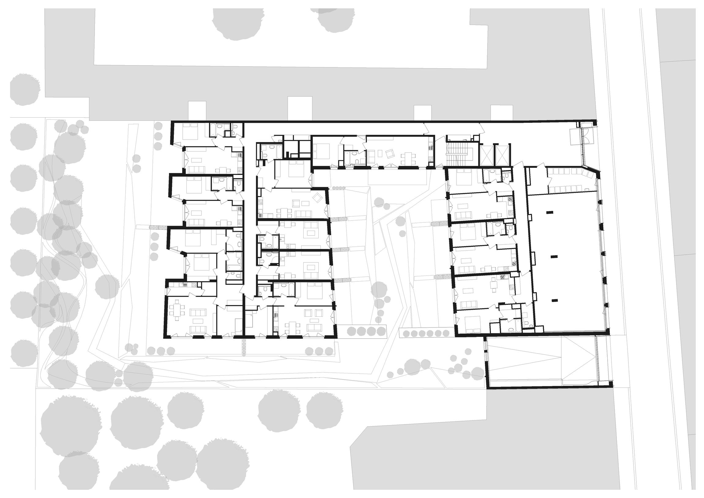
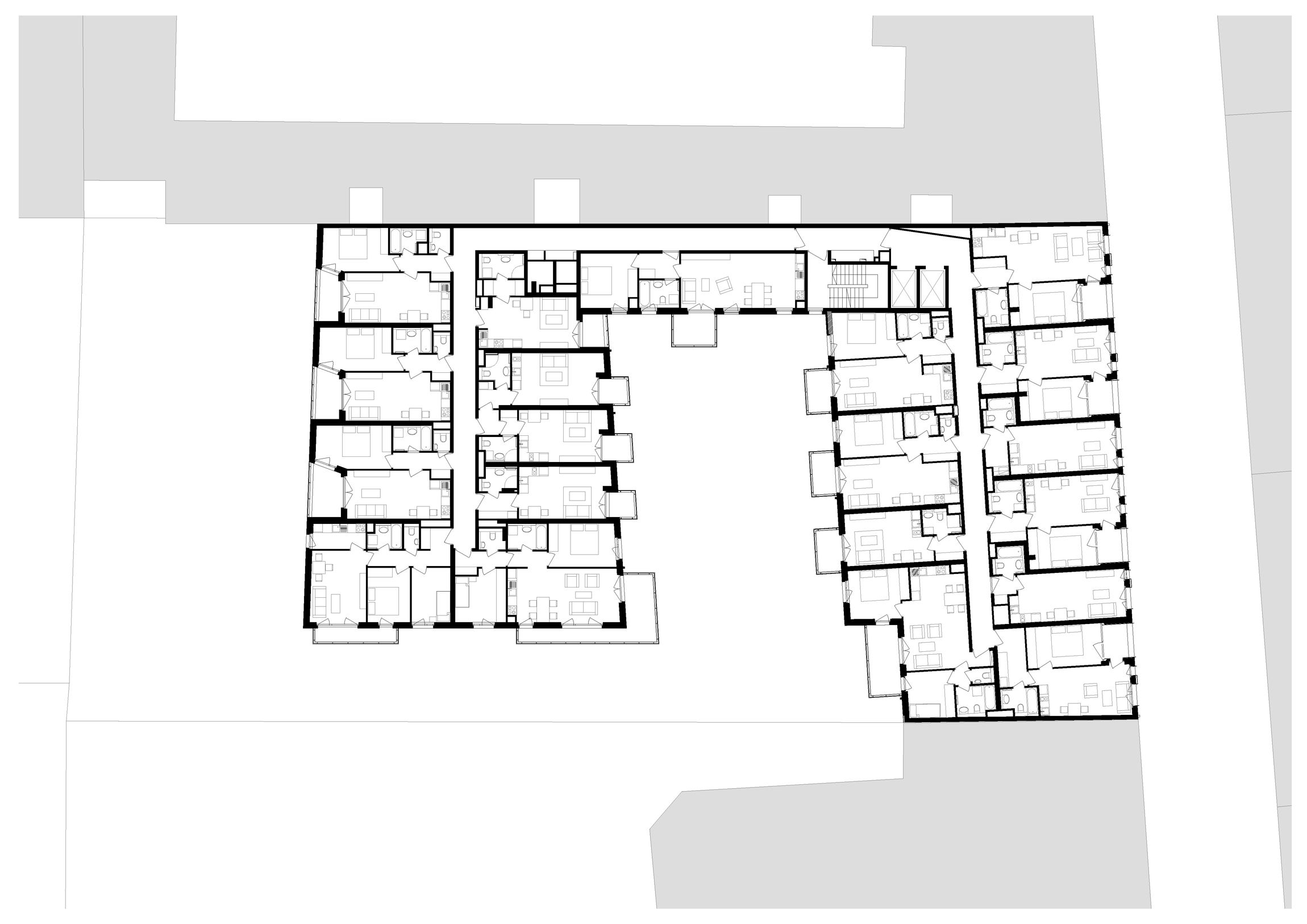
A VII. kerület Magyarország legsűrűbben lakott kerülete, és a tervezési terület kiváltságos helyzetben van ebben a kerületben. Délről egy olyan telek határolja, aminek hosszan nyújtózó belső udvara nagyjából beépítetlen és beépíthetetlen, méretes fák lombjai terpeszkednek a fényárban. A hátsó szomszéd is üde meglepetés, az ott csatlakozó telek is egy intenzív zöld kerttel csatlakozik hozzá.
A beépítés ezeket a jó adottságokat aknázza ki. Az utca felől az épület természetesen betartja a zártsorú beépítés klasszikus játékszabályait, és felveszi a csatlakozó szomszédos homlokzat magasságát, követi tetőformáját. A beépítés a telek mélysége felé haladva végig letakarja az északi telekhatáron magasodó hatalmas, elhanyagolt tűzfalat. A többi épületrész mind a napfény és a zöld felé fordul, egy délről nyitott udvart keretez meg a fő tömeg, és hátrafelé is kertre néz.
Az utcai homlokzat képzését két perspektíva felől közelítettük: a keskeny utcában messziről feltárulva illeszkedjék a megjelenés a környék rendjébe, de ahogy a házhoz érünk, adja meg a megérkezés élményét is.
A köztérre néző főhomlokzatokon mindig szabályos hálós szerkesztés figyelhető meg, a nyílászárók és párkányok, tagozatok rendjei harmonikus arányokkal igazodnak egymáshoz, a vertikális és horizontális tengelyek tiszta képletet alkotnak. Mi ezt igyekeztünk megragadni és lefordítani a huszonegyedik század nyelvére. Horizontális értelemen folytattuk az utcai szomszéd földszinti párkányvonalát, mely esetünkben a földszinti és első emeleti nyílásokat fogja össze egy magasított lábazati kompozícióba. A szomszédos zárópárkány magasságában mi is lezártuk felülről a mi felületünket.
A vertikális tengelyek is rendet képeznek, azonban nem adnak egy egységes, szigorú rasztert az eredeti értelemben. A nyílászárók keretezése itt-ott kivételt képez és nem egymás felett folytatódik, így egy töredezettebb rácsos homlokzati hatás jön létre. Azon túl, hogy ez így sokkal inkább egy mai összképet eredményez, az alkotói elképzelés szerint így hitelesebben reflektál a ház a környezte múltjára is, a fordulatos évszázad szabálytalan tükörképe.
A szűk utcában messziről közelítve az aranyozott hatást keltő, kiugró nyílászárókeretezések dominálnak, így illesztve be az épületet a környezet sárgás tónusaiba. Az arany tisztelgés a foghíj telek múlt századi vasműves múltja előtt. Az épület előtt állva a nagyobb téglafelület hatása már erősebb, mint a keretezés - ez egyfajta játékosságot visz a közeledő látvány feltárulkozásába.
A nagyon keskeny járda miatt adódott a gondolat, hogy a főbejáratot hátrébb húzzuk, és a külső homlokzati eszköztárat a lobby belsőépítészetében is folytassuk. Ezzel fogalmazzuk meg a megérkezésnél a semi-private (semi-public) átmeneti teret. A hátrahúzott homlokzat természetesen nem csak hangsúlyt ad, hanem komfortot is jelent, időjárástól, és a járda forgalmától védett teret biztosít a belépéshez.
A belső homlokzatok visszafogottabbak. Az egymásra néző, mondhatni „belső udvari” felületek fehérek, világosak, tiszták. Az erkélyek csoportosításán, keretezésén újfent visszaköszön az utcán bevezetett „arany” rácsos motívum, díszítő játékosságot kölcsönözve az udvar megjelenésének, és intimitást biztosítva a szomszédos teraszok használóinak. A hátsó homlokzat a vele szemközt álló épület szabályos homlokzata felé tisztelettel fordul, rendezett, feszes képet mutat.
Kidolgoztunk egy arculati kézikönyvet, vagyis az épület vizuális elemeire vonatkozó szabályrendszert, melyek hatása a portálokon is visszaköszönik majd. A belsőben a feliratokat egységesítettük.
