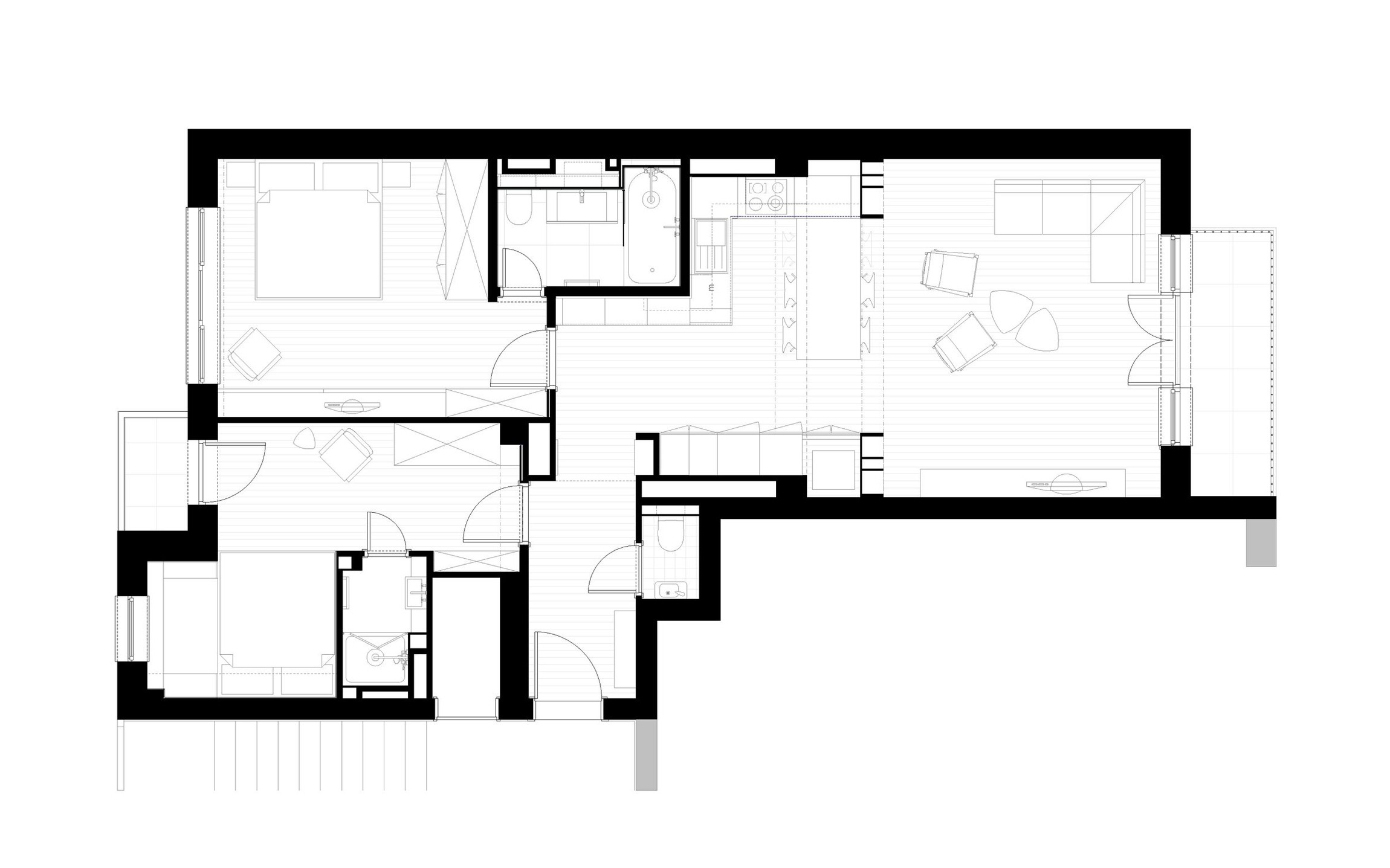
Lakás az Attila úton
Helyszín: Budapest, I. kerület
Tervezés: 2014-2015
Megvalósulás: 2016
Lépték: 83 m2
Vezető tervezők: LAB5 architects | Erdélyi Linda, Dobos András, Korényi Balázs, Gáspár Virág Anna Tervezők: Nyerges Judit, Borbély Júlia
Bútorok és kiegészítők: IDdesign
Stylist: Szabó Réka IDdesign
Fotók: Batár Zsolt
A lakás belső kialakítása és bútorozása nagyban épít a ház meglévő értékeire, különleges szerkezetére, megragadó hangulatára, elegáns stílusára.
