Irodaház felújítás a belvárosban, EMKE
Helyszín: 1081 Budapest, Rákóczi út 42.
Építtető: AEW Europe
Eredeti épület: Atelier d’Architecture Brenac et Gonzales és Kruppa Építész Iroda (1992)
Tervezés: 2012
Megvalósulás: 2013-2014
Lépték: 18.800 m2
Vezető tervezők: LAB5 architects | Erdélyi Linda, Dobos András, Korényi Balázs, Gáspár Virág Anna
Tervezők: Debreczeni András, Koós Marianna (s.m.all design), Lukács Eszter, Perge Diana, Szegedi Zoltán, Sztojka Gábor (s.m.all design), Tótszabó Tamás, Vámos Zoltán
Üvegművész konzulens: Ábel Tamás
Fotók: Bujnovszky Tamás
Helyezés: „Az Év Boltja 2015” díj, 1. helyezés
A földszinti és első emeleti terek építészeti és belsőépítészeti átszabása mellett, a generál tervezői feladat tartalmazta az épület teljes körű energiatudatos felújítását is, a gépész és az elektromos rendszerek tekintetében.
...több mutatása
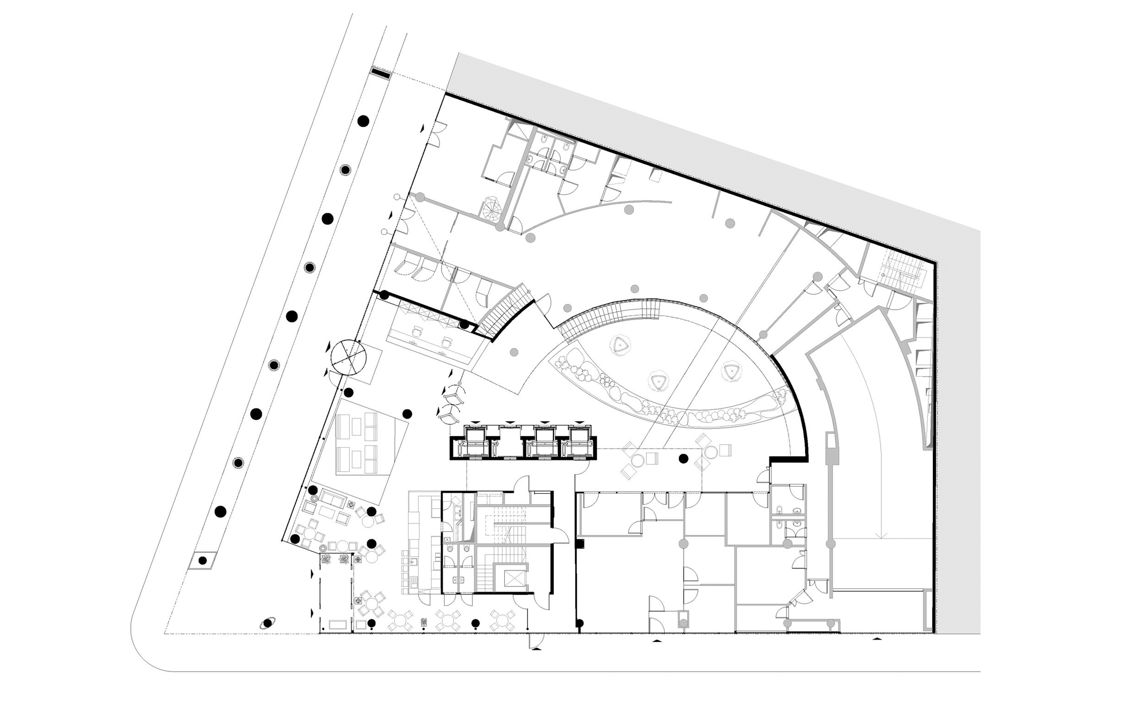
Helyszín és tervezési program
Az EMKE Irodaház az egyik első nyugati típusú irodaházként épült fel, a rendszerváltás utáni években. A tulajdonos a mára elavult épület átalakítása és felújítása mellett döntött.
A földszinten új, kiadható, utcakapcsolattal rendelkező teret szerettek volna elhelyezni, így a tervezők a főbejárat súlypontba történő áthelyezését javasolták. Így egyrészt, az utcasarkon felszabaduló hely remek adottságokkal rendelkezik, mint kiadható tér, másrészt, az új főbejáraton történő belépés sokkal kedvezőbb hatású, mint korábban.
A földszinti és első emeleti terek építészeti és belsőépítészeti átszabása mellett, a program tartalmazta az épület teljes körű energiatudatos felújítását is, a gépész és az elektromos rendszerek tekintetében.
Belsőépítészet
A legnagyobb hatású beavatkozás a belső térben a zöld elemek hangsúlyos alkalmazása. Az épület belső közlekedő és közösségi területei nemcsak átmeneti “semi-public” teret alkotnak a városi külső és az irodai belső terek között, hanem egyben egy zöld szigetet is képeznek, amire az irodák ablakai néznek, és amin az irodisták és vendégeik rendszeresen áthaladnak.
A koncepció fontos része volt, hogy minden közösségi funkcióval bíró terület egy teret alkothasson, amely így elegáns, tágas, és szellős lehet. Ez sok helyen nemcsak vizuális kapcsolatot jelent a különböző funkciók között, hanem teljes átjárhatóságot és áttörést.
Mivel a meglévő épületből sok elemet meg kellett tartani (például a második emelettől felfelé az átriumra néző belső homlokzatokat), így az új részek szervesen illeszkednek hozzájuk: világos üvegfelületek, látszó vasbeton, és neutrális elemek kerültek csak beépítésre.
Anyagok, formák, színek
A belsőépítészet több ponton a természetet idézi meg.
A várakozó terület egy fehér lapokból „hajtogatott”, önállóan álló, szoborszerű podeszt. A felhajtogatott részekből növények nőnek felfelé, melyek kissé le is határolják a lobby-t a kiadható tértől. A teljes objekt meg lett „lebegtetve”, hogy intimitást adjon az ott ülő várakozóknak.
A recepciós-pult szintén művészi formálás eredménye, a frontját egyedi üvegművész alkotás adja. Az üveg speciális halmazállapotú folyadék, a formálás is hullámokat idéz; mindez arra utal, hogy az irodaépület legforgalmasabb pontján található, ahol nemcsak megérkeznek és elköszönnek az emberek, hanem információt is cserélnek, ezáltal egyfajta, folyamatos „flow”-t generálnak.
Sok egyéb, szabad terület is növényfelületet kapott; így az átrium pinceszinti fala, illetve a földszinti terület ferde padlóterülete, mely egyben az átrium nyílását is keretezi a lenti szintek felé.
Az átriumba helyezett fák meg lettek emelve, hogy a lenti étteremből minél kevesebb helyet foglaljanak, illetve, hogy a lombkorona minél magasabbra kerülhessen, minél közelebb az irodák belsőre néző ablakaihoz.
A szabadon maradt belső felületekre fehér üvegburkolat került, hogy a belső tér minél világosabb lehessen. Egyelten kivétel a liftmag folyosóra néző fala, mely fekete lett, ezzel a „jelöléssel” segítve a vendégek tájékozódását.
A liftek a korábbiaktól eltérően a földszinten immáron az átrium felől használatosak, így ott szükség volt egy új, fogadó üvegfal kialakítására, és a liftkabinok felújítására. Hogy a panoráma minél inkább megmaradjon, csak üveg elemek kerültek beépítésre, az üvegfal súlyát üveg tartószerkezet hordja, és a liftkabin fala és ajtaja is keretezetlen, rejtett rögzítésű üveg elemekből áll.
A recepció és a kiadható tér felett néhány elemet el kellett rejteni, ide a nagy belmagasságú térben „repülő” dobozok kerültek. Ezek többrétegű üvegfelülettel burkoltak, vagyis vegyesen áttört, savmart, és tükör felületekből. Belülről ki vannak világítva, így a lobby a munkaidőn túl, az épület esti képéhez szervesen hozzájárul.
Gépészet
A teljes gépészeti rendszer a legújabb követelmények szerint lett felújítva, így az üzemeltetés és a karbantartás is sokkal gazdaságosabbá vált. A friss levegő kapacitás megnövelték a magasabb belső komforthoz. A tűzjelző rendszert és a gépészeti hálózatot új BMS és gyengeáramú rendszer irányítja.
