Gizella Étterem – Irodaépület átalakítás
Helyszín: 1143 Budapest, Hungária krt. 128. 3-as épület
Építtető: Gladiátor III. Ingatlan Befektetési Alap
Tervezés: 2020
Kivitelezés: 2021
Lépték: 700 m2
Eredeti tervező: A&D Studio | Reimholz Péter, Lázár Antal, Gunter R. Standke (1998)
Vezető tervezők: LAB5 architects | Dobos András, Erdélyi Linda, Korényi Balázs, Gáspár Virág Anna
Projekt építész: Kupi Benedek
Tervezők: Barta Fruzsina, Bartha Katalin, Székely Dávid
Épületgépészet: Temesvári Tervező Kft | Temesvári László, Szlovák Krisztián
Épületelektromosság: Kelevill Kft. | Kelemen Ferenc, Szepesi Ferenc, Szikora Nándor
BMS: IQ Kft | Harmath László
Tűzvédelmi tervező: Fireeng Kft | Decsi György
Konyhatechnológia: Coninvest | Rácz Ákos
Akusztika: ’95 Apszis | Csott Róbert
Árazatlan költségvetés-kiírás: Novaép Bt | Nyüsti László
Épületfotók: Batár Zsolt
Az eredeti épület a neves tervező páros, Lázár Antal és Reimholz Péter munkája. Az akkoriban még be nem fejezett, mára forgalmas és fontos fővárosi úttá avanzsált Hungária körút egyik legfontosabb modern alkotása. A területet sokan úgy, mint Siemens telephely ismerik, a rajta álló kilenc épület irodai és technológiai tereket tartalmaz, és a ház születése is a Siemens-hez kötődik. A high-tech épület sallangmentes és mégis elegáns tömbje finoman hátra van húzva a körúttól, amitől még egy akusztikai üvegfal is védelmezi.
...több mutatása
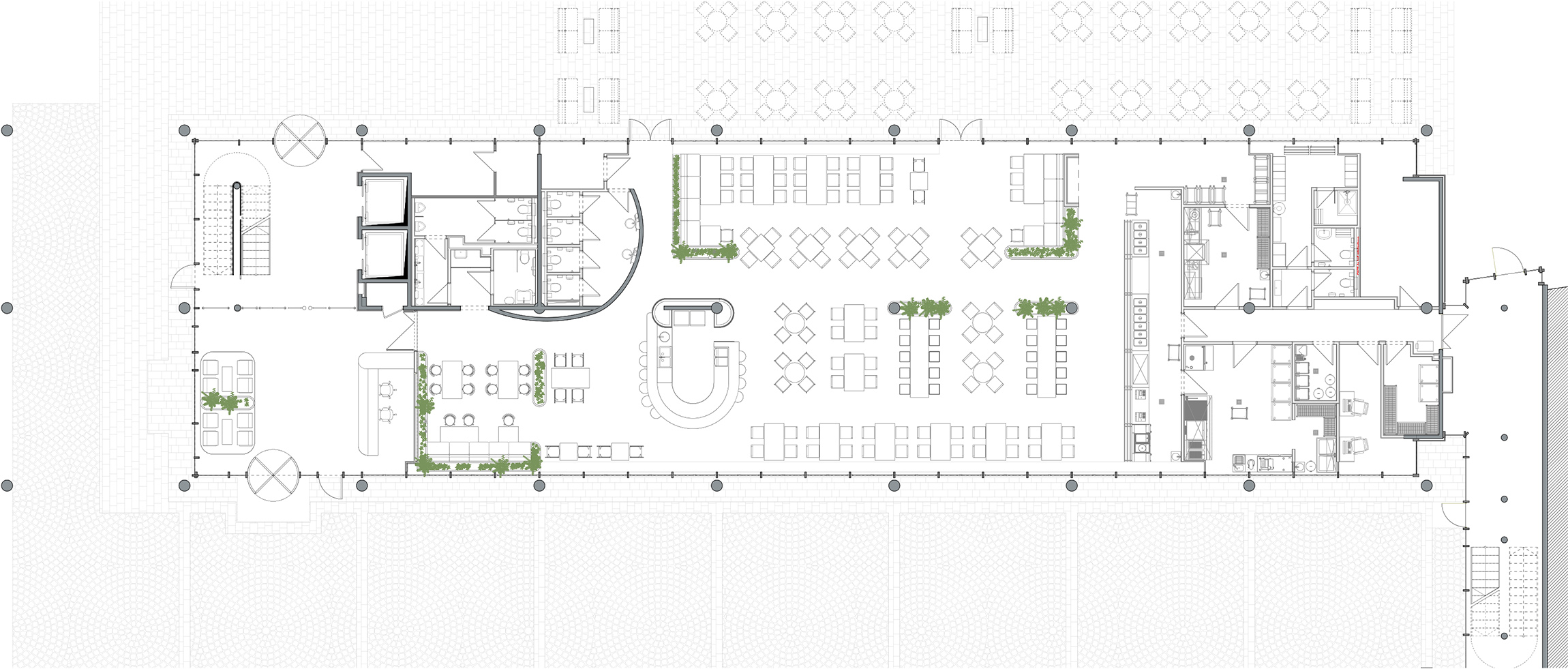
Az éttermet az egykori földszinti irodaterek elbontása után alakítottuk ki. A teljes telephely időközben kisebb átalakuláson esett át. Az étterem nem csak a házban és a területen dolgozókat, hanem vendégeiket, és a környéken lakókat is szolgálja. Olyan tér kialakítása volt a cél, mely nem csak a menza jellegű étkeztetésre alkalmas, hanem közösségi térként is funkcionál. Bárként az ebédidőszakon kívül, közösségi tér vállalati eseményekhez, elvonulós hely irodán kívüli egyeztetéshez. A tervezés során Lázár Antallal többször egyeztetve alakult ki a végleges megoldás.
Az épület egyben a telephely fő „recepciója” is, az étterem erről a forgalmas pontról megközelíthető, külsős látogatóknak még a kártyás beléptetés előtt. A belsőben a bejárathoz közel, előre került a kávézó pult hosszú nyitvatartási idővel, hátra a nagy forgalom lebonyolítására alkalmas éttermi pult, mögötte a konyhatechnológia tereivel. Az egyszerű és nyitott térszervezés könnyen áttekinthető, de a lehatárolások által védett mezők is kialakulnak.
A designban egyértelműen a meglévő épület eszközkészletéből indultunk ki. A fémes és szürke felületeket a hangulathoz igazodó színekkel kombináltuk. Fényes kék kerámia jelenik meg a falakon, és a kék változatos árnyalataiban válogattunk mobiliákat. A fő csapásirányt vörös terpesztett fémlemezrács jelöli ki a belső hossztengelyében az álmennyezeten, melyet ugyanez a szín zár le az éttermi pult feletti kötényfalon.
A formavilágban a külső jegyek köszönnek vissza, a hálós-raszteres alaprajzi rendszert lekerekített elemek oldják. A tetőn található kör alaprajzú gépészeti tömeget idézi a mosdóblokk íves lehatárolása. Az álmennyezetet elhagytuk, a szabad felületeket fehérre festettük, vagy akusztikai elemekkel burkoltuk.
Az eredeti 1998-as koncepció része volt, hogy a körúttól enyhén elforduló tömeg a kis utcák irányait veszi fel. Erre reagáltunk a lámpák osztásával, ami így sodró játékosságot eredményez. A kávézópultot kiemeli a ritmusos világítási kép megtörése a függesztett gömblámpákkal.
Az atmoszféra cizellálásához, és otthonosabbá tételéhez a fémes hatással kontrasztban sok beltéri növényt telepítettünk. Az üvegfelületek lamellás árnyékolói a nyitvatartási időben fel vannak húzva, így a teret átjárja a természetes fény, s mindkét irányba kilátunk, a telephely belseje felé a teraszra nézünk ki, kifelé pedig a körút forgalma látszik.
