A Corvin-Szigony Projekt zárótömbje: Grand Corvin
Helyszín: 1082 Budapest, Corvin sétány 7-9.
Építtető: Cordia Global 19 Ingatlanfejlesztő Részalap
Tervezés: 2016-2017
Kivitelezés: 2019-2022
Lépték: 35.900 m2
Felelős tervező: LAB5 architects | Erdélyi Linda, Dobos András, Korényi Balázs Csaba, Gáspár Virág Anna
Projektvezetők: Ferenczi Zsófia, Bordi Beáta
Munkatársak: Barta Fruzsina, Bartha Katalin, Bató Blanka, Bocska Beáta, Kendi Bogáta, Macsuga Eszter, Monori László, Németh Diána, Nyerges Judit, Páncsics Dávid, Sipos Rebeka, Szegedi Zoltán, Tótszabó Tamás
Belsőépítészet: LAB5 architects | Erdélyi Linda, Gáspár Virág Anna, Szelezsán Bálint, Sipos Rebeka
Táj-építészet: 4d Tájépítész Iroda Kft, Balogh Andrea
Statika: Terraplan ’97 Kft, Puskás Balázs
Épületszerkezetek: Dudinszky Tervezőiroda Kft, Dudinszky Orsolya
Gépészet: G&B PLan Kft, Bukovics János
Elektromos: Kelevill Bt, Kelemen Ferenc
Tűzvédelem: Fireeng Kft, Decsi György
Közlekedés: Közlekedés Kft, Rhorer Ádám
Felvonó: Schindler Hungária Kft, Gróf Ferenc
Épületfotók: Batár Zsolt, Danyi Balázs
A VIII. kerület az ezredforduló környékén hírhedt volt a rossz közbiztonságról, a szegénységről, a vécé nélküli lakásokról, az omladozó vakolatú házakról, és a zsúfolt utcákról. A központi fekvés és színes a történelmi múlt ellenére, a budapestiek méltatlanul csak „gettóként” emlegették a környéket.
...több mutatása
Az Önkormányzat rehabilitációba fogott, de a pénzügyi keret szűkössége miatt nehéz döntést kellett hoznia. Kis ütemekben haladva, lebontották a romos épületeket, megemelték az övezeti paramétereket, eladták a telkeket, majd pótolták a hiányzó szociális intézményeket, miközben a kerület más részein magasabb színvonalú lakásokat biztosítottak az egykori lakóknak. A kritikák szerint ez csak az utcák rehabilitációjához és a közösség felbomlásához vezetett, a város örökségét felszámolva – de az igazat megvallva, a „régi szép éveket” mégsem fogja senki visszasírni.
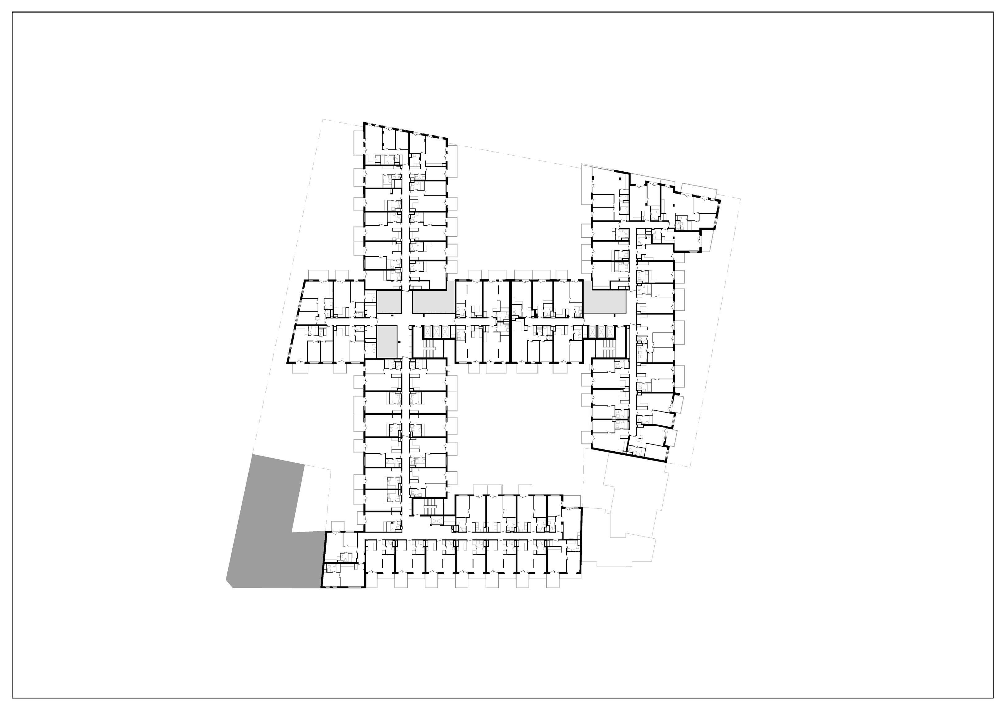
A nagy, közterülethiányos területek miatt a hatóságok egy új, széles sétálóutcát is belevágtak a városi szövetbe. Egy zöld sétányt alakítottak ki, ami a fejlesztés legnépszerűbb részévé vált. A LAB5 építészei nyerték meg a fejlesztés utolsó üres tömbjén található „122b” kódszámú lakóépület tervezésére kiírt építészeti tervpályázatot.
Koncepciónk 3 fő kérdésre kereste a választ.
Hogyan lehet egy új épületet a környékhez igazítani, ha az nagyobb, mint a környezet történelmi léptéke? A telkünk 7 egykori telket foglal el.
Hogyan lehet maximalizálni a sétányra néző apartmanok számát, miközben a szűk mellékutcákat is szélesebbé tesszük? Tiszteletben akartuk tartani az eredeti utcaszerkezetet is.
És – a legfontosabb kérdés – megmenthetjük-e építészetileg valamit a kerület múltjából? Túlléptünk ezen az utóbbi 25 évben, de a kerület olyan értékeket is őriz, amelyeket szívesen őriznénk meg a jövő generációi számára.
Arra törekedtünk, hogy egy kollázst hozzunk létre, ne pedig egy hatalmas blokk szilárd tömegét. Különböző stílusokat gyűjtöttünk össze, és újakat adtunk hozzá az új karakterhez, hogy a környék eredeti színes, élénk utcaképét megszólaltassuk és az elmúlt évtizedek új arculatával ötvözzük.
Megidéztük a foghíjakat is – az eredeti környezet meg nem épült telkeinek lenyomatait. Így kifejlesztettünk egy befejezetlen tetrist, ahol minden pixel saját stílust képvisel a felületképzés anyaghasználatával, a korlátok, a színek, és a tömegjáték tekintetében. A homlokzatok magasabbra nőnek az újonnan épült gyalogos tengely felé, ahol más új magas épületek is állnak. A két sarkon két régi modernista épületet kellett megőrizni, így itt a léptéket is az szomszédokhoz kellett igazítani. A felsőbb szinteken számos teraszt nyertünk, mely a teraszokról a város tetői és tűzfalai láthatók, háttérben a tehetősebb budai hegyekkel.
A tömeg nem merőleges a sétányra, hanem a tömb mögötti utcaszerkezet geometriáját mutatja. Az belső udvarok és előkertek miatt az épület úgy néz ki a helyszínrajzon, mint egy törött hashtag szimbólum. Az előkertek több teret adnak a mellékutcáknak, és több napsütést engednek az ablakokra.
A tömbben 555 lakás elhelyezését oldottuk meg, melyek közül sok az északi homlokzati sétányra néz. Ezt a homlokzatot meleg tónusú, fényes fémlemezzel burkoltuk, hogy több természetes fényt tükrözzünk a környezetre. Az előkert az utcáról nyitva maradt, átmeneti térként funkcionál a köz- és magánterületek között. A belső zárt udvar pedig biztosítja az intim zöldfelületet az itt lakóknak.
