EY irodák
Helyszín: 1132 Budapest, Váci út 20.
Tervezés: 2016
Megvalósulás: 2016-2018
Lépték: 8000 m2
Vezető tervezők: LAB5 architects | Erdélyi Linda, Dobos András, Korényi Balázs, Gáspár Virág Anna
Tervezők: Fehér Gabriella, Ferenczi Zsófia, Monori László, Mottl Rita, Sipos Rebeka, Szegedi Zoltán
Társtervezők: MTM Statika, ReEnergy, Kelevill, Báder György, Aqrate, Novaép, SALT
Az eredeti épület tervezője: Studio’100 Architects | Szász László
Fotók: Batár Zsolt
Az Ernst&Young budapesti irodája bérleményi területe megtartása mellett döntött, egyrészt a meglévő épület praktikus layoutja, másrészt a kiemelkedően jó lokációnak köszönhetően. Azonban a beköltözés óta sokat változtak a munkahelyekkel kapcsolatos elvárások, így az épület szinte teljes felújítása mellett döntött. A tervezés a bérlő, a beruházó tulajdonos, a projekt manager, és a tervezők szoros kooperációjában valósult meg, akik szoros együttműködése a megvalósult iroda.
...több mutatása
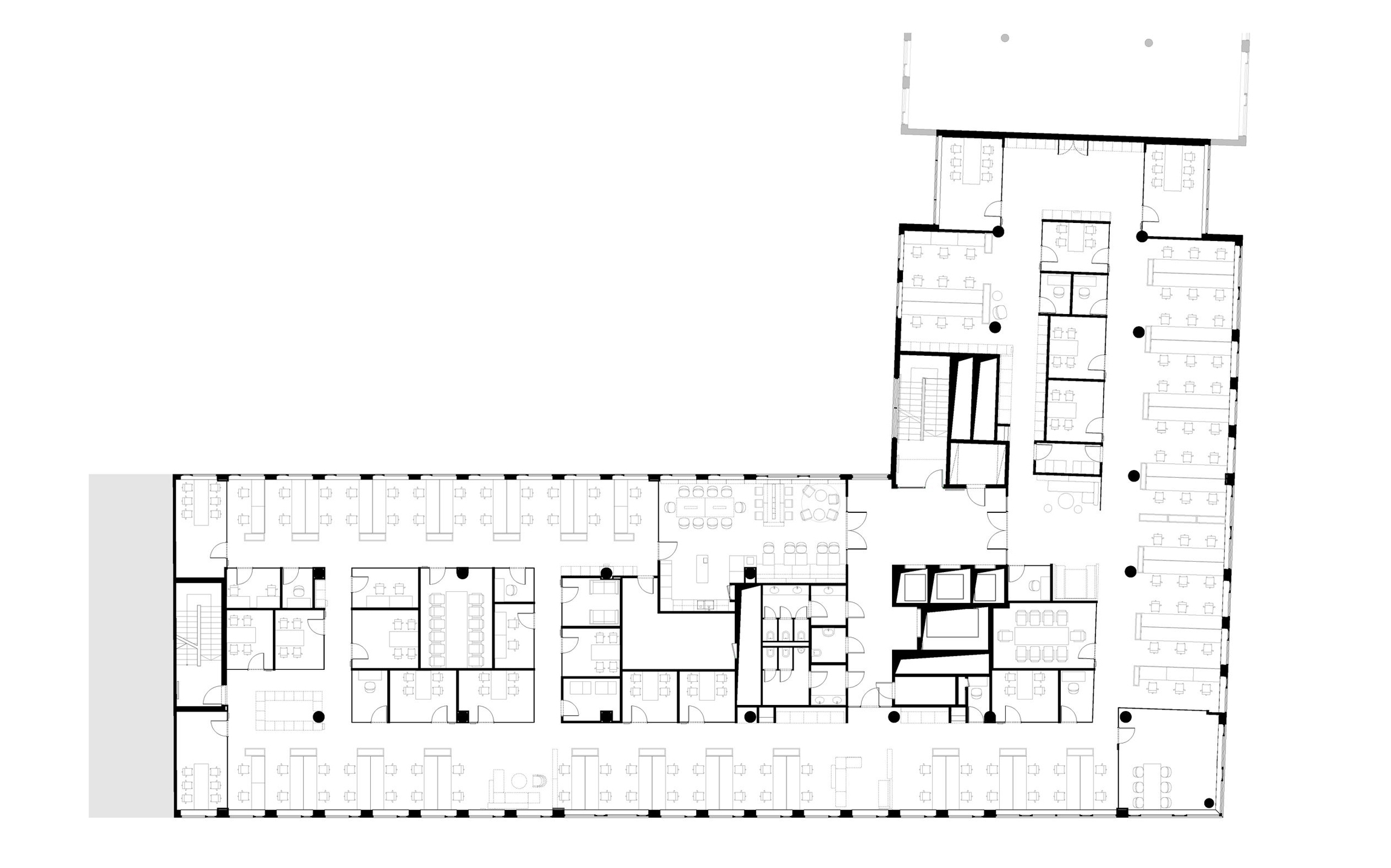
A belső funkciókat a felgyülemlett tapasztalatok türkében újraosztották. A földszinten konferencia terek lettek betervezve, a 7. emeletre a vezetői tárgyalók kerültek, az általános szintekre pedig az általános irodaterületek. A mélygarázs kerékpártárolója új öltözőblokkot kapott. A belső kert is felfrissült, melynek terveit az épület eredeti tervezője és tájépítésze készítette el. A gépészeti és elektromos rendszerek elavultak, így cserére és felújításra kerültek a mai, környezettudatos és ergonómiailag fontos szempontok mentén.
Az irodabelső berendezése a szabad ültetésen alapszik, vagyis minden kolléga a tevékenységéhez leginkább megfelelő területet szabadon választhatja ki. Az épületszárny ablakhoz közeli területein az általános irodai munkaterületek találhatóak, amiket felkönnyítenek a beszúrt lazább, félmagas bárpulttal ellátott, rövidebb megbeszélésekre alkalmas területek, „collaboration area”. Az épületszárny belsejében, az ablakoktól távolabb eső területeken üvegezett „dobozokban” a kisebb-nagyobb tárgyalók és telefonfülkék vannak, illetve tömör felületek mögé rejtve a háttérfunkciók, mint fénymásolás, irattár, szerver, stb.
Minden általános szint lelke a HUB, mely egy olyan, bisztróra emlékeztető terület, mely nem csak ebédelésre alkalmas, hanem kisebb leülésekre is, illetve olyan munkák elvégzésére, melyekhez a dolgozó szeretne kiszakadni az általános területről. Gyakorlatilag ezzel felszámolásra kerültek az elszórt, apró mini-konyhák, hogy helyettük egy barátságos, szociálisabb terület alakulhasson ki, mely több munkatárs interakcióját is eredményezi.
A teljes belső atmoszféra az EY vállaltfilozófiájának tükre, átlátható, hatékony, professzionális – és ugyanígy barátságos, természetes, és könnyed is. Különös hangsúlyt fektettünk a kényelmes munkahelyekre, a belső zöldfelületek kiemelt és előre betervezett megjelenítésére, az áttekinthetőségre és egységességre. A komfortot emelik az alkalmazott teremakusztikai és hanggátlási megoldások, az egységes signage, és a további, tájékozódást segítő elemek.
