A Borjúvásárcsarnok loft irodaterének felfrissítése
Helyszín: Máriássy Ház, 1095 Budapest, Máriássy utca 7.
Építtető: WING Zrt.
Tervezés: 2018
Megvalósulás: 2019
Lépték: ~2000 m2
Tervezők (2018-as felfrissítés): LAB5 architects | Erdélyi Linda, Dobos András, Korényi Balázs, Gáspár Virág Anna, Sipos Rebeka, Tóth Annamária
A korábbi átalakítás és felújítás tervezője (2004): Vezető tervező: Schüller és tsa Kft, vezető építész tervező: Schüller Ferenc, munkatársak: Déry Judit, Hoffman Tamás, Kovács Balázs | Generál tervező: Aspectus Architect Zrt, építész tervező: Billing Tamás, építész munkatárs: Hönich István
Az épület eredeti tervezője (1927): Riva József
Fotók: Batár Zsolt
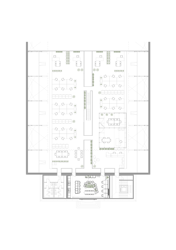
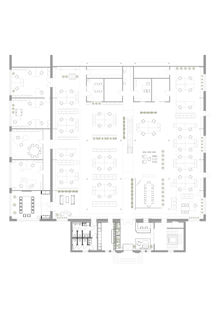
A WING Zrt. irodája a Máriássy Házban található. Az épületet 1927-ben borjúvásárcsarnoknak építették, majd sorsa rengeteg fordulatot vett, számos funkcióváltással. Egy időben garázsként is működött, végül sok bérleményi területre darabolódott szét, kusza belsőt, és elhanyagolt külsőt eredményezve. Hazánk vezető ingatlanfejlesztője 2004-ben vásárolta meg, és átalakította irodaházzá, hogy ide helyezhesse székhelyét. A felújítást Schüller Ferenc tervezte, aki az addigra termeszvárra emlékeztető épületet egybenyitotta, és a tágas csarnoktérben nagyvonalú, egyterű, loft irodát alakított ki.
A LAB5 architects-et 2018-ban kérték fel a belső felfrissítésére. Az eltelt időben nem csak a megjelenéssel kapcsolatos trendek változtak meg, hanem az irodai munka jellege is jelentősen átalakult. Fontosak lettek a közösségi terek, az egyterű irodák egysége mellett azok vizuális tagolása, a co-workingre és várakozásra szolgáló felületek. Mindezeket úgy kellett kialakítanunk, hogy az ülésszámot is növelni lehessen, szem előtt tartva napjaink egyre flexibilisebb elvárásait.
...több mutatásaA csarnoktér igen tetszetős egyterű loft iroda hatását megtartottuk, vizuálisan egy absztrakt rácsostartóval tagoltuk, mely több célt szolgál. Egyrészt a korábban szervetlenül megjelenő kaspós növényeket összegyűjtve lehet rajta tárolni, másrészt a szerkezet az alsó és felső szinteket átjárja, felemeli a tekintetet a régi épület impozáns szerkezetére, és vertikalitásával kompenzálja a földszinti, alacsonyabb belmagasságú irodatér adottságait. Szerkezeti rendszere mai hatású, de barátságosan idomul a csarnok régi rácsostartójához.
Az asztalcsoportokat összevontuk, és a fennmaradó területeken lounge és tárgyaló felületeket alakítottunk ki. A bejáratnál található nagy tárgyalót két oldalról üvegezéssel láttuk el. Az oldalcsarnok helyiségeit átszerveztük, hogy az ottani tárgyaló a bejárathoz közelebb kerüljön, az épület sarkán több impozáns ablakfelületet kapjon.
A kapuépületben lévő emeleti kisebb helyiségek egybenyitásával alakult ki az új teakonyha, mely egy nagyobb térként több embert tud kényelmesen és együtt kiszolgálni, a többfajta ültetéssel és szabad belmagassággal több funkcióra alkalmasan.
A belső színvilágot a megmaradó elemek tiszteletben tartásával finomhangoltuk. A korábbi átalakítás során a csarnok mennyezetére egy bordó zsaluelem került burkolatnak, mely fontos akusztikai funkcióval bírt. A többi belső felületet halvány-szürke tónusokban gondoltuk újra. Így egyrészt a bordó szín a mai trendekbe illeszkedő színként jelenik meg, másrészt minden terület világosabbnak, tágasabbnak hat.
