Cordia Marketing Office Interior Design
Location: EU, Hungary, 1089 Budapest, Kisfaludy u. 32-38.
Client: Futureal management Kft.
Planning: 2015
Realization: 2016
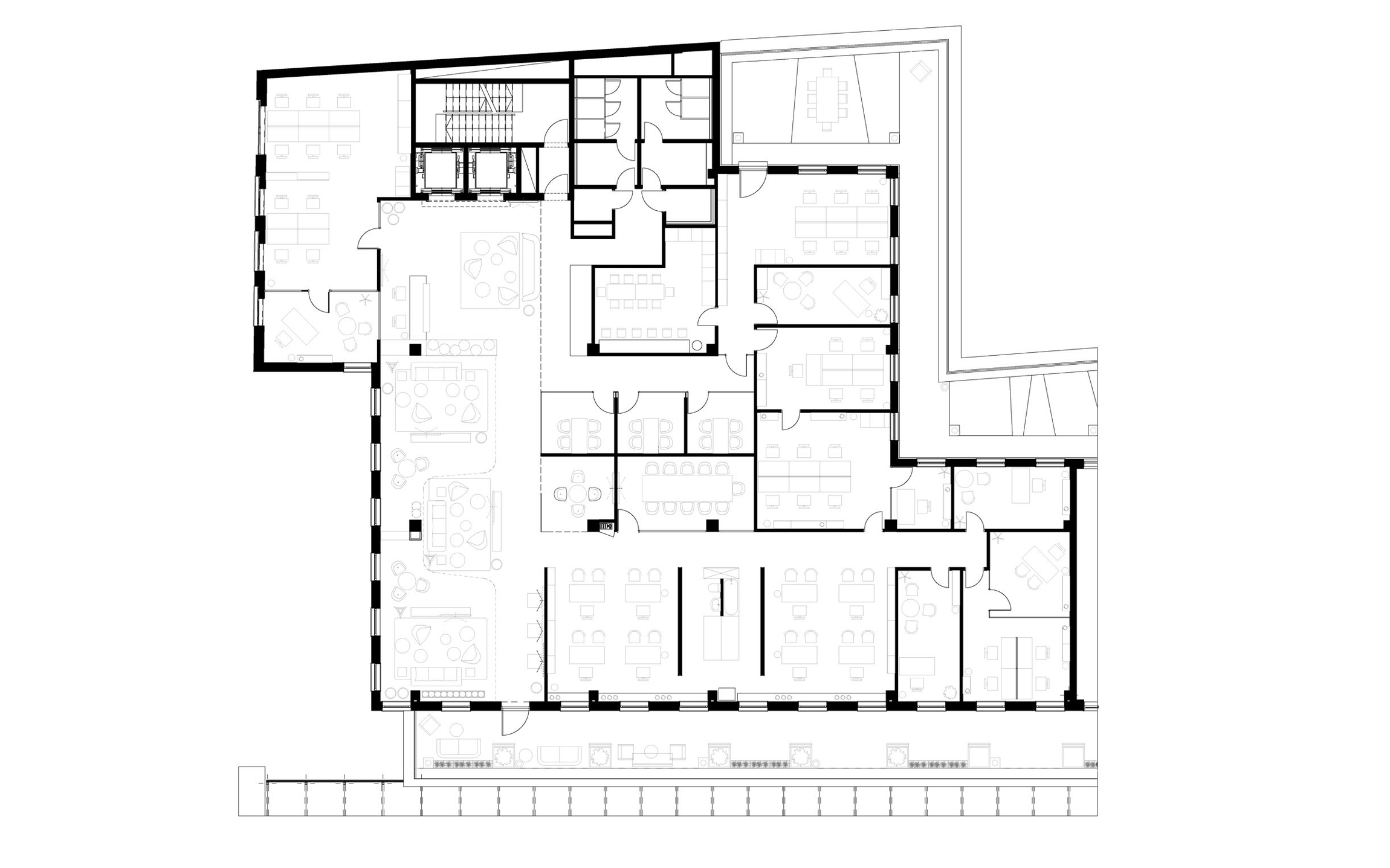
Scale: 740 m2
Leading designers: LAB5 architects + Matisz Aliz | Linda Erdélyi, András Dobos, Balázs Korényi, Virág Anna Gáspár
Designers: Judit Nyerges, Milán Z. Szabó (Matisz Aliz), Zoltán Szegedi, Zsófia Ferenczi, Rebeka Sipos, Gabriella Fehér, László Monori
Photos: Csaba Barbay, Flashback Photo
Competition: Interior Design Competition, 1st place, „Office of the year 2016” Prize, 3rd place
The developer-construction company’s own project: an office which functions as a work environment of the sales team, show office, and a presentational and trans-venue. The design is based on the creative combination of playfulness, elegance and functionality. The spaces are visually distinguishable, acoustically stilled and provide a cosy and convenient environment. An engine powered curtain with long curvy path is the main feature of the space that provides separation as needed, and also makes the atmosphere more dynamic.
