Government Customer Point – Budapest Keleti Railway Station

Location: EU, Hungary, 1087 Budapest, Kerepesi út 2-4. Keleti pályaudvar

Client: MÁV Magyar Államvasutak Zrt.

Planning: 2014

Realization: 2016-2017

Scale: 730 m2

Leading designers: Korényi és Társai Építész Kft. | András Korényi

LAB5 architects | Linda Erdélyi, András Dobos, Balázs Korényi, Virág Anna Gáspár

Designers: Júlia Borbély, Tamás Tótszabó

Photos: Zsolt Batár

 

 

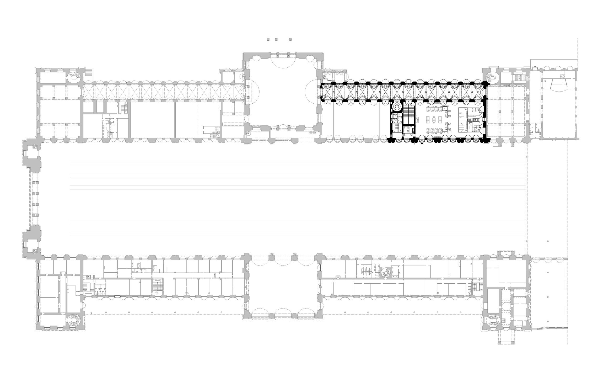
We designed the refurbishment of one of the halls of the busiest railway station of Budapest. The space is occupied by a Government Customer Point, where the old details of the building have been carefully renovated by precise restaurateur works. The new elements are as expected by the Customer Point Guidebook, and new functions are solved in a modest, clean way, we grouped and placed the back office spaces in a glass-cube of mirror glass. The refurbishment works include the renovation of the roof, the attic, and the large side-corridor as well.