Chateau at Lake Balaton
Location: North shore of Lake Balaton, Veszprém County
Client: private
Planning: 2017
Realization: concept, competition
Scale: 1400 m2
Leading designers: LAB5 architects | Linda Erdélyi, András Dobos, Balázs Korényi, Virág Anna Gáspár
Designers: Bogáta Kendi, László Monori, Diána Németh, Tamás Tótszabó
Photos and visualization: LAB5
Competition: Honourable Mention Award
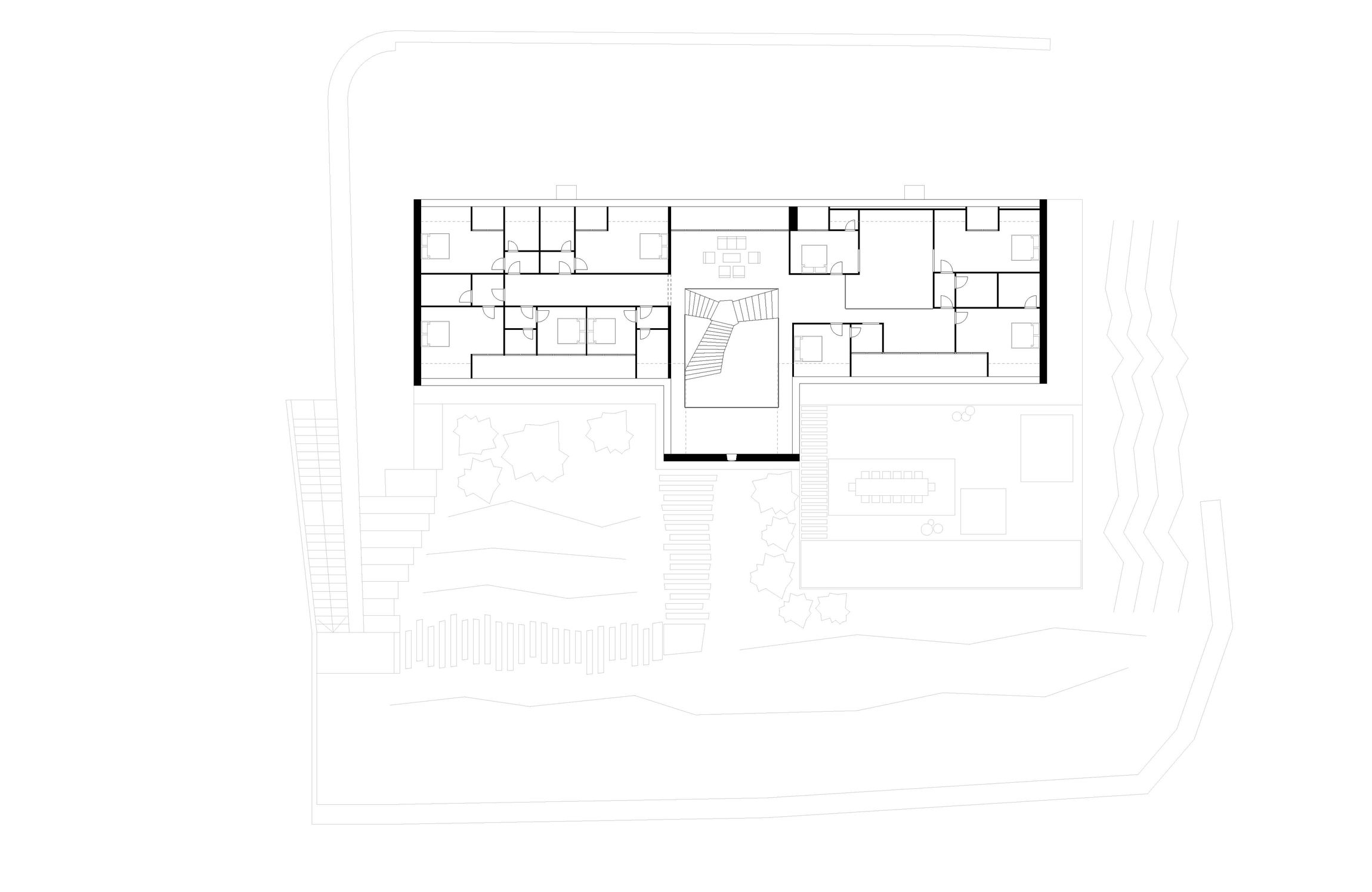
Old winery chateau standing in the middle of a grape field, with a 360 degrees panorama on the lake and the surrounding mountains. The new owner wishes to fully refurbish it with a full-year-use program of private, spa, work areas, and with also many rooms for their visitors. The Southern terrace we provided with a special water feature, that helps to use the surface in the warm summertime, and there a hot bath included too, for relaxation outdoor during wintertime.
